Dane techniczne
- Powierzchnia użytkowa 125.20 m²
- Powierzchnia zabudowy 117.50 m²
- Kubatura 646.00 m³
- Kąt nachylenia dachu 40.00°
- Wysokość budynku 8.06 m
- Min. wymiary działki 16.60x22.60 m
- Garaż 19.30 m²
- Pracownia Krajobrazy
Technologia budowy
Ściany w projekcie wykonano z betonu komórkowego z ociepleniem, strop jest gęstożebrowy typu Teriva, więźba w całości drewniana. Do pokrycia dachu można użyć dachówki ceramicznej lub cementowej. Elewacje tynkowane na fragmentach wariantowo mogą być obłożone płytkami kamiennymi i drewnem. Inne materiały do wykorzystania podczas adaptacji.
Opis
Projekt domu piętrowego z garażem jednostanowiskowym. Parter zajmuje otwarta strefa dzienna: salon oraz kuchnia ze spiżarnią, a także dodatkowy pokój, łazienka, pomieszczenie gospodarcze i wiatrołap z miejscem na szafę. Na poddaszu znajdują się trzy wygodne sypialnie, garderoba dla największej z nich, łazienka oraz strych.Dom o nieskomplikowanej bryle, dzięki której koszty realizacji będą niskie. Przykrywa go prosty dwuspadowy dach. Elementami charakterystycznymi są kamienne i drewniane fragmenty elewacji, które nadają mu cieplejszego wyglądu. Projekt dostępny w wariancie z garażem jednostanowiskowym lub bez, jak również w odbiciu lustrzanym.
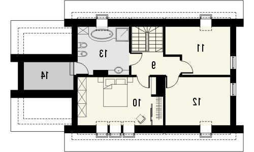
Rzuty
1. wiatrołap 3.9m2
2. hall 8.5m2
3.salon z kuchnią 34.0m2
4. pokój 12.3m2
5.łazienka 3.9m2
6. spiżarnia 1.4m2
7. pom. gospodarcze 6.6m2
8. garaż 19.3m2
9. hall 4.8m2
10. pokój 16.1m2
11. pokój 11.2m2
12. pokój 12.7m2
13. łazienka 9.8m2
14. strych
Rzuty
1. wiatrołap 3.9m2
2. hall 8.5m2
3.salon z kuchnią 34.0m2
4. pokój 12.3m2
5.łazienka 3.9m2
6. spiżarnia 1.4m2
7. pom. gospodarcze 6.6m2
8. garaż 19.3m2
9. hall 4.8m2
10. pokój 16.1m2
11. pokój 11.2m2
12. pokój 12.7m2
13. łazienka 9.8m2
14. strych
Dbamy o swoich Klientów, jak nikt inny!
Do każdego projektu zakupionego za pośrednictwem serwisu kreoDOM.pl otrzymasz książeczkę z rabatami na zakupy w firmach Komfort, Fachowiec, Domino Łazienki, Komandor, Witek Home i innych. Książeczka na pewno okaże się przydatna podczas urządzania Twojego wymarzonego domu!
Książeczka z rabatami do takich firm jak: Komfort, Domino Łazienki, Fachowiec, Vox, Komandor, Witek Home i innych
Gwarancja
bezpiecznych zakupów
Dodatkowe pakiety projektowe
- Kosztorys inwestorski 950 zł
- Zielony pakiet z pompą ciepła 750 zł
- Aktualizacja do WT2021 850 zł