Dane techniczne
- Powierzchnia użytkowa 125.10 m²
- Powierzchnia zabudowy 144.20 m²
- Kubatura 731.60 m³
- Kąt nachylenia dachu 40.00°
- Wysokość budynku 7.51 m
- Min. wymiary działki 21.50x21.00 m
- Garaż 39.60 m²
- Pracownia MOJ-DOM
Technologia budowy
Ściany:
Fundamenty: żelbetowe, wylewane
Ściany piwnic: bloczki betonowe
Ściany zewnętrzne: jednowarstwowe, beton komórkowy lub pustaki ceramiczne
Stropy:
nad piwnicą - płyta żelbetowa, nad parterem - drewniany belkowy
Wykończenie:
Schody: drewniane
Dach
Pokrycie dachu: dachówka betonowa
Opis
Budynek jednorodzinny, parterowy, z poddaszem mieszkalnym, częściowo podpiwniczony, 4 pokoje, kuchnia, garaż
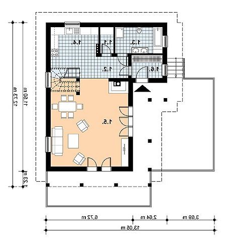
Rzuty
1. pom. gospodarcze2.2 m2
2. hall6.6 m2
3. łazienka8.1 m2
4. kuchnia10.0 m2
5. pokój dzienny39.1 m2
6. wiatrołap3.5 m2
1. sypialnia18.1 m2
2. sypialnia16.5 m2
3. pom. gospodarcze2.4 m2
4. łazienka8.3 m2
5. hall8.1 m2
6. sypialnia23.8 m2
Rzuty
1. pom. gospodarcze2.2 m2
2. hall6.6 m2
3. łazienka8.1 m2
4. kuchnia10.0 m2
5. pokój dzienny39.1 m2
6. wiatrołap3.5 m2
1. sypialnia18.1 m2
2. sypialnia16.5 m2
3. pom. gospodarcze2.4 m2
4. łazienka8.3 m2
5. hall8.1 m2
6. sypialnia23.8 m2
Dbamy o swoich Klientów, jak nikt inny!
Do każdego projektu zakupionego za pośrednictwem serwisu kreoDOM.pl otrzymasz książeczkę z rabatami na zakupy w firmach Komfort, Fachowiec, Domino Łazienki, Komandor, Witek Home i innych. Książeczka na pewno okaże się przydatna podczas urządzania Twojego wymarzonego domu!
Książeczka z rabatami do takich firm jak: Komfort, Domino Łazienki, Fachowiec, Vox, Komandor, Witek Home i innych
Gwarancja
bezpiecznych zakupów
Dodatkowe pakiety projektowe