Dane techniczne
- Powierzchnia użytkowa 138.89 m²
- Powierzchnia zabudowy 148.02 m²
- Kubatura 880.68 m³
- Kąt nachylenia dachu 45.00°
- Wysokość budynku 8.78 m
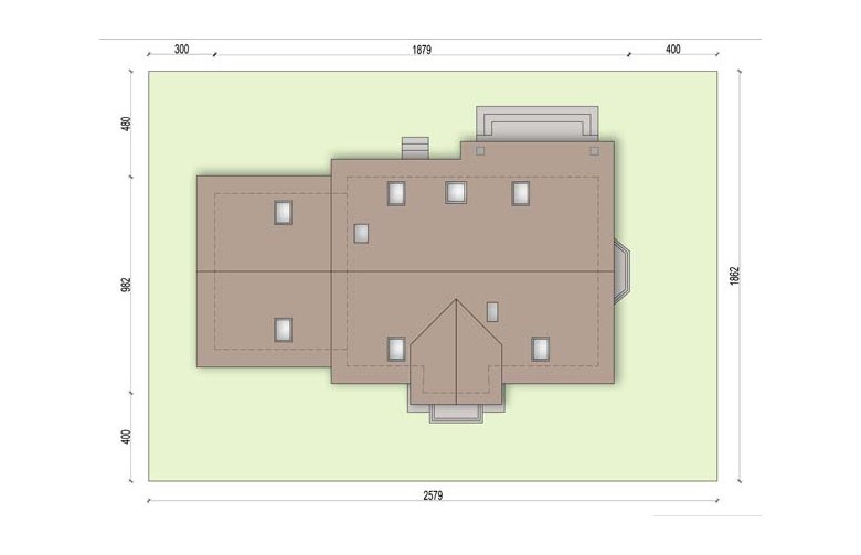
- Min. wymiary działki 25.79x18.62 m
- Garaż 35.64 m²
- Pracownia Archand
Technologia budowy
Fundamenty żelbetowe
Ściany nośne i działowe z pustaków ceramicznych
Strop gęstożebrowy
Konstrukcja dachu drewniana
Dachówka ceramiczna
Opis
Mango G2 to bardzo komfortowy dom jednorodzinny o klasycznej architekturze. Dzięki funkcjonalnemu rozplanowaniu pomieszczeń, dom zapewni wygodę w użytkowaniu 4-5 osobowej rodzinie.
Otwarty salon i jadalnia połączona z kuchnią, stworzą komfortową przestrzeń dla życia rodzinnego i towarzyskiego. Dodatkowo na parterze zlokalizowano pokój gościnny, oraz łazienkę. Dzięki czemu poddasze pozostanie strefą wyłącznie dla mieszkańców domu.
Niewątpliwym atutem projektu jest łazienka na poddaszu z której dostępna jest pralnia oraz duży strych mogący pełnić funkcję np. suszarni. Nie zapomniano również o pomieszczeniu gospodarczym z wyjściem na ogród, oraz garderobie. Prosta bryła i nieskomplikowana konstrukcja, sprawią że dom będzie tani i łatwy w budowie.
W projekcie zastosowano wyłącznie typowe i sprawdzone rozwiązania technologiczne, co znacznie ułatwi realizację i zminimalizuje koszty eksploatacji.
Rzuty
PARTER
- wiatrołap 3,49 m²
- komunikacja schody 13,56 m²
- salon z kuchnią 40,14 m²
- łazienka 3,09 m²
- pom. gospodarcze/c.o. 8,03 m²
- pokój gościnny 11,35 m²
- garaż 35,64 m²
PODDASZE
- komunikacja 5,41 m²
- łazienka 7,44 m²
- pokój 12,56 m²
- pokój 12,71 m²
- pokój 13,93 m²
- garderoba 2,23 m²
- pralnia/suszarnia 5,02 m²
- strych 21,85 m²
Rzuty
PARTER
- wiatrołap 3,49 m²
- komunikacja schody 13,56 m²
- salon z kuchnią 40,14 m²
- łazienka 3,09 m²
- pom. gospodarcze/c.o. 8,03 m²
- pokój gościnny 11,35 m²
- garaż 35,64 m²
PODDASZE
- komunikacja 5,41 m²
- łazienka 7,44 m²
- pokój 12,56 m²
- pokój 12,71 m²
- pokój 13,93 m²
- garderoba 2,23 m²
- pralnia/suszarnia 5,02 m²
- strych 21,85 m²
Dbamy o swoich Klientów, jak nikt inny!
Do każdego projektu zakupionego za pośrednictwem serwisu kreoDOM.pl otrzymasz książeczkę z rabatami na zakupy w firmach Komfort, Fachowiec, Domino Łazienki, Komandor, Witek Home i innych. Książeczka na pewno okaże się przydatna podczas urządzania Twojego wymarzonego domu!
Książeczka z rabatami do takich firm jak: Komfort, Domino Łazienki, Fachowiec, Vox, Komandor, Witek Home i innych
Gwarancja
bezpiecznych zakupów
Dodatkowe pakiety projektowe
- Kosztorys inwestorski 590,00 zł
- 5 egz. Projektu 290,00 zł
- Zamówiony kosztorys razem z projektem 390,00 zł
- 5 egz. Projektu zamówione razem z projektem 190,00 zł