Ściany zewnętrzne 2-warstwowe: Beton komórkowy ( 24cm) / Pustak ceramiczny (25cm) + styropian 20cm Uściany < 0,20 W/(m2*K) – warunek spełniony.
Ławy fundamentowe tradycyjne: Ściany fundamentowe betonowe gr.24(25cm) z bloczków betonowych lub wylewane.
Stropy: płyta żelbetowa. Zamiennie można zastosować strop gęstożeberkowy typu TERIVA .
Konstrukcja dachu: tradycyjna drewniana, pokrycie dachu z dachówki ceramicznej.
Elewacje: pokryte tynkiem strukturalnym cienkowarstwowym.
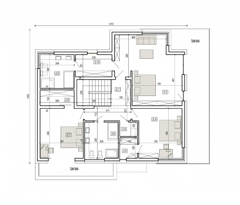
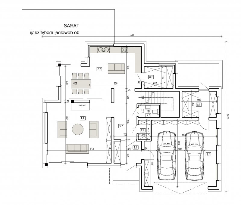
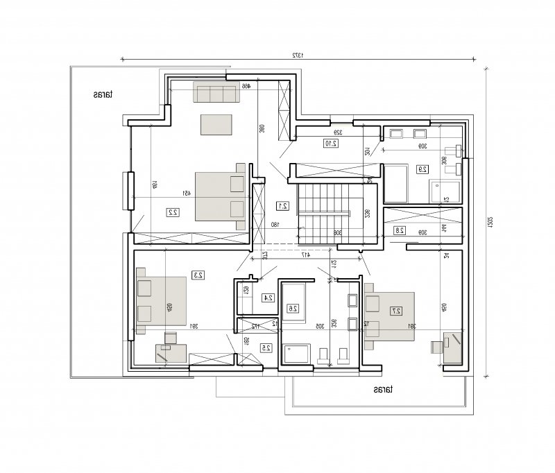
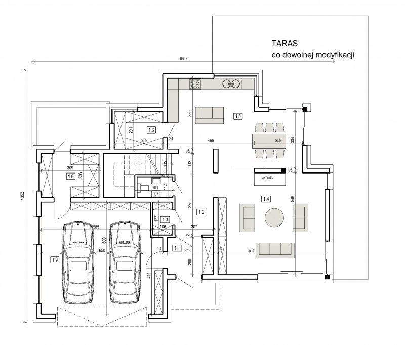
Otwarta kuchnia z wyspą, obszerna jadalnia oraz pokój dzienny tworzą na parterze wspólną przestrzeń. Na piętrze znajdują się dwie duże sypialnie z własnymi garderobami oraz jedna większa sypialnia z podwójną garderobą i dostępem do prywatnego pokoju kąpielowego. Dom posiada bardzo wygodny garaż na dwa samochody osobowe (o szerokości 650cm). Projekt może być realizowany na terenach objętych planem zagospodarowania, w którym wymagane jest duże nachylenie dachu i odpowiednia wysokość budynku do kalenicy. W prezentowanym projekcie dostępne jest możliwe do zagospodarowania poddasze nad piętrem (można zaprojektować np. pomieszczenie do rekreacji). Dostęp do poddasza poprzez typowe schody żelbetowe z klatki schodowej. Domy z powyższymi cechami powstają w Warszawie-Wilanowie. Możliwe jest opracowanie wersji projektu z tradycyjnym dachem o kącie nachylenia np. 21 stopni. Dom pasuje na działki z wjazdem od południa.
Energooszczędność:
Wersja standardowa:
Projekt spełnia wymagania cieplne dla nowo projektowanych domów określone w WT2008 (Rozporządzenie Ministra Infrastruktury dotyczące warunków technicznych, jakim powinny odpowiadać budynki i ich usytuowanie). Charakterystyka energetyczna w granicach 120 [kWh/m2/rok].
Wersja energooszczędna:
Projekt dostępny w wersji energooszczędnej .Czas realizacji zamówienia 10dni.
Charakterystyka energetyczna w granicach 75 [kWh/m2/rok].
Projekt w tej wersji posiada instalację wentylacji z odzyskiem ciepła oraz zmodyfikowane grubości izolacji fundamentów, podłóg, ścian, stropów i dachu.
1.1 Przedsionek 4.9
1.2 Hall 8.8
1.3 Schowek/garderoba 1.8
1.4 Pokój dzienny 31.0
1.5 Kuchnia z jadalnią 27.0
1.6 Spiżarnia 5.0
1.7 WC 2.0
1.8 Pom.gospodarcze 7.0
1.9 Garaż 2st. 37.4