Ściany zewnętrzne 2-warstwowe : Beton komórkowy ( 24cm) / Pustak ceramiczny (25cm) + styropian 20cm Uściany < 0,20 W/(m2*K) – warunek spełniony.
Ławy fundamentowe tradycyjne. Ściany fundamentowe betonowe gr.24(25cm) z bloczków betonowych lub wylewane.
Stropy - płyta żelbetowa . Zamiennie można zastosować strop gęstożeberkowy typu TERIVA .
Konstrukcja dachu - tradycyjna drewniana , pokrycie dachu z dachówki ceramicznej.
Elewacje - pokryte tynkiem strukturalnym cienkowarstwowym.
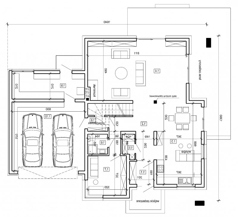
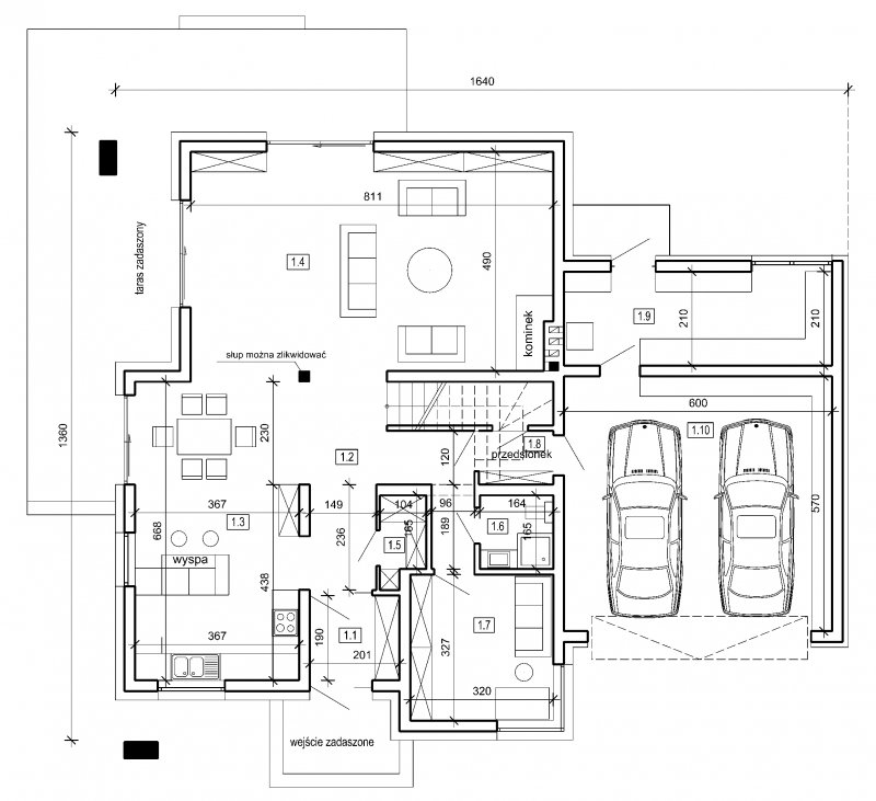
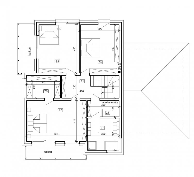
Dom o architekturze współczesnej do realizacji na działkach podmiejskich umożliwiających postawienie domu piętrowego. Układ domu jest prosty i przejrzysty, na parterze część dzienna - kuchnia z możliwością montażu tzw"wyspy", duży salon, duże pomieszczenie gospodarcze z wyjściem na ogród, wygodny garaż na 2 samochody. Na piętrze umieszczono pomieszczenia charakterystyczne dla strefy nocnej czyli: sypialnie oraz łazienki i garderoby.
Wersja standardowa:
Projekt spełnia wymagania cieplne dla nowo projektowanych domów określone w wt2008 (rozporządzenie ministra infrastruktury dotyczące "warunków technicznych ,jakim powinny odpowiadać budynki i ich usytuowanie)
charakterystyka energetyczna w granicach 120 [kwh/m2/rok]
Wersja energooszczędna:
Projekt dostępny w wersji energooszczędnej .czas realizacji zamówienia 10dni.
charakterystyka energetyczna w granicach 75 [kwh/m2/rok]
projekt w tej wersji posiada instalację wentylacji z odzyskiem ciepła oraz zmodyfikowane grubości izolacji fundamentów,podłóg,ścian, stropów i dachu.
1.1 Przedsionek 3.7
1.2 Hall 11.5
1.3 Kuchnia z jadalnia 24.3
1.4 Salon 38.8
1.5 Spiżarnia 1.8
1.6 Łazienka 2.6
1.7 Gabinet 10.3
1.8 Przedsionek 1.9
1.10 Pom.gospodarcze 12.4
1.11 Garaż 2.s 33.8