Ściany zewnętrzne 2-warstwowe: Beton komórkowy ( 24cm) / Pustak ceramiczny (25cm) + styropian 20cm Uściany < 0,20 W/(m2*K) – warunek spełniony.
Ławy fundamentowe tradycyjne: Ściany fundamentowe betonowe gr.24(25cm) z bloczków betonowych lub wylewane.
Stropy: płyta żelbetowa. Zamiennie można zastosować strop gęstożeberkowy typu TERIVA .
Konstrukcja dachu: tradycyjna drewniana, pokrycie dachu z dachówki ceramicznej.
Elewacje: pokryte tynkiem strukturalnym cienkowarstwowym.
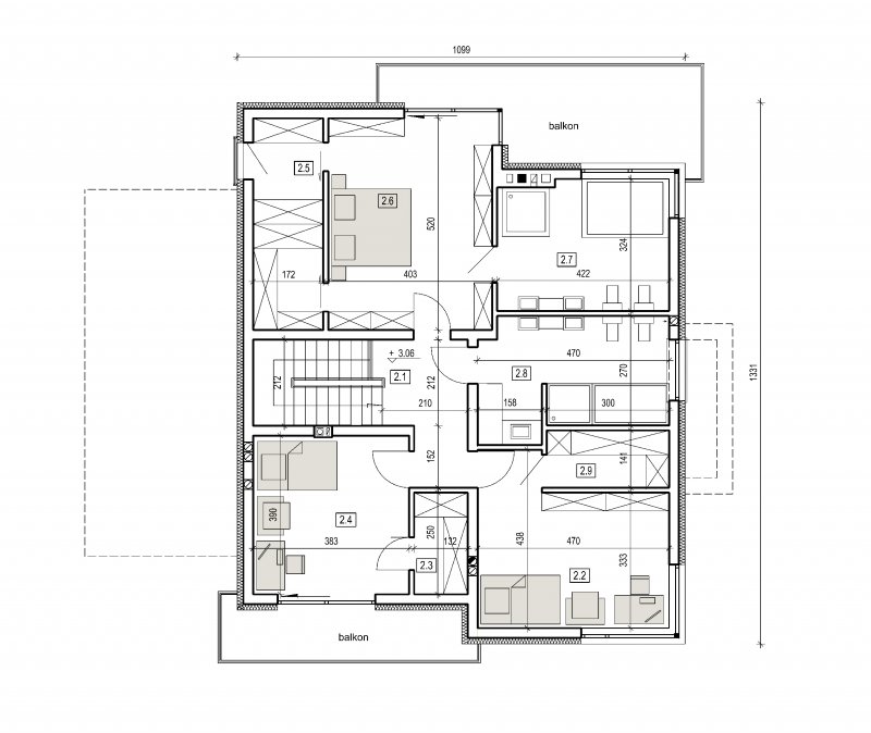
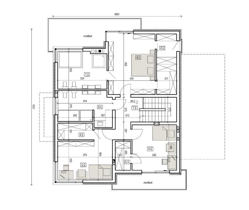
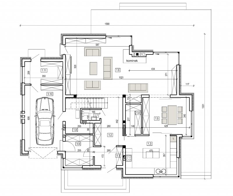
Otwarta kuchnia z wyspą, obszerna jadalnia oraz duży salon o powierzchni 47 m2 tworzą na parterze wspólną przestrzeń. Na piętrze znajdują się dwie duże sypialnie z własnymi garderobami oraz jedna większa sypialnia z podwójną garderobą i dostępem do prywatnego pokoju kąpielowego. Łazienka główna posiada wydzieloną przestrzeń na pralnie. Dom posiada garaż na jeden samochód osobowy.
Energooszczędność:
Wersja standardowa:
Projekt spełnia wymagania cieplne dla nowo projektowanych domów określone w WT2008 (Rozporządzenie Ministra Infrastruktury dotyczące warunków technicznych, jakim powinny odpowiadać budynki i ich usytuowanie). Charakterystyka energetyczna w granicach 120 [kWh/m2/rok].
Wersja energooszczędna:
Projekt dostępny w wersji energooszczędnej .Czas realizacji zamówienia 10dni.
Charakterystyka energetyczna w granicach 75 [kWh/m2/rok].
Projekt w tej wersji posiada instalację wentylacji z odzyskiem ciepła oraz zmodyfikowane grubości izolacji fundamentów, podłóg, ścian, stropów i dachu.
1.1 Przedsionek 4.3
1.2 Hall 9.3
1.3 Kuchnia 16.6
1.4 Spiżarnia 4.0
1.5 Jadalnia 14.4
1.6 Pokój dzienny 47.1
1.7 Wc 1.6
1.8 Pom. gospodarcze 4.0
1.9 Garderoba 7.0
1.10 Garaż 2 st. 21.0
1.11 Pom. gospodarcze 7.2