Dane techniczne
- Powierzchnia użytkowa 218.10 m²
- Powierzchnia zabudowy 231.60 m²
- Kubatura 739.34 m³
- Kąt nachylenia dachu 35.00°
- Powierzchnia dachu 328.00 m²
- Wysokość budynku 9.93 m
- Min. wymiary działki 31.03x26.88 m
- Garaż 34.74 m²
- Pracownia LK & Projekt
Technologia budowy
- Ławy fundamentowe: żelbetowe
- Ściany fundamentowe: z pustaków szalunkowych o gr.30 i 25 cm, ocieplone styropianem 'Gold fundament' o gr.20 cm firmy Termo Organika
- Wentylacja: mechaniczna z rekuperacją
- Okna i drzwi balkonowe: aluminiowe
- Sposób ogrzewania: kocioł na gaz, wspomaganie cwu kolektorami słonecznymi, ogrzewanie podłogowe
- Elewacje: wykończone tynkiem silikonowym, cegłą klinkierową Terca Karpatia firmy Wienerberger
- Ściany zewnętrzne: z pustaków ceramicznych 'Porotherm 30 Profi' firmy Wienerberger, ocieplone styropianem 'Gold Fasada' gr. 20 cm firmy Termo Organika
- Ściany wewnętrzne: z pustaków ceramicznych 'Porotherm Profi' gr. 25, 11.5 cm firmy Wienerberger
- Konstrukcja dachu: drewniana docieplona wełną mineralną gr. 30 cm firmy Rockwool
- Pokrycie dachu: dachówką ceramiczną 'Koramic' firmy Wienerberger, Karpiówka
- Strop: żelbetowy
- Koszt orientacyjny (bez Vat): 612 750.00 zł.
Opis
Projekt domu piętrowego z przestronnym tarasem oraz garażem.
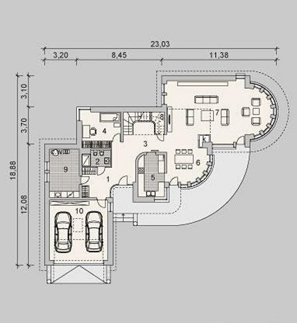
Rzuty
- Sień 12,00 m2
- Łazienka 4,53 m2
- Hall 15,10 m2
- Pokój 13,23 m2
- Kuchnia 10,86 m2
- Jadalnia 16,80 m2
- Pokój dzienny 53,90 m2
- Schowek 2,29 m2
- Kotłownia z pralnią 14,28 m2
- Garaż 34,74 m2
- Hall 9,80 m2
- Łazienka 12,86 m2
- Sypialnia 12,92 m2
- Sypialnia 2 13,42 m2
- Sypialnia 3 18,96 m2
- Garderoba 3,58 m2
- Garderoba 2 3,57 m2
- Strych (42,39) 2,76 m2
Rzuty
- Sień 12,00 m2
- Łazienka 4,53 m2
- Hall 15,10 m2
- Pokój 13,23 m2
- Kuchnia 10,86 m2
- Jadalnia 16,80 m2
- Pokój dzienny 53,90 m2
- Schowek 2,29 m2
- Kotłownia z pralnią 14,28 m2
- Garaż 34,74 m2
- Hall 9,80 m2
- Łazienka 12,86 m2
- Sypialnia 12,92 m2
- Sypialnia 2 13,42 m2
- Sypialnia 3 18,96 m2
- Garderoba 3,58 m2
- Garderoba 2 3,57 m2
- Strych (42,39) 2,76 m2
Dbamy o swoich Klientów, jak nikt inny!
Do każdego projektu zakupionego za pośrednictwem serwisu kreoDOM.pl otrzymasz książeczkę z rabatami na zakupy w firmach Komfort, Fachowiec, Domino Łazienki, Komandor, Witek Home i innych. Książeczka na pewno okaże się przydatna podczas urządzania Twojego wymarzonego domu!
Książeczka z rabatami do takich firm jak: Komfort, Domino Łazienki, Fachowiec, Vox, Komandor, Witek Home i innych
Gwarancja
bezpiecznych zakupów
Dodatkowe pakiety projektowe
- Kosztorys inwestorski cena ustalana indywidualnie
- Kolektory słoneczne cena ustalana indywidualnie
- Kominek z DGP cena ustalana indywidualnie
- Wentylacja mechaniczna z rekuperacją cena ustalana indywidualnie
- Pompa ciepła cena ustalana indywidualnie