Ściany zewnętrzne 2-warstwowe : Beton komórkowy ( 24cm) / Pustak ceramiczny (25cm) + styropian 20cm Uściany < 0,20 W/(m2*K) – warunek spełniony.
Ławy fundamentowe tradycyjne. Ściany fundamentowe betonowe gr.24(25cm) z bloczków betonowych lub wylewane.
Stropy - płyta żelbetowa . Zamiennie można zastosować strop gęstożeberkowy typu TERIVA .
Konstrukcja dachu - tradycyjna drewniana , pokrycie dachu z dachówki ceramicznej.
Elewacje - pokryte tynkiem strukturalnym cienkowarstwowym.
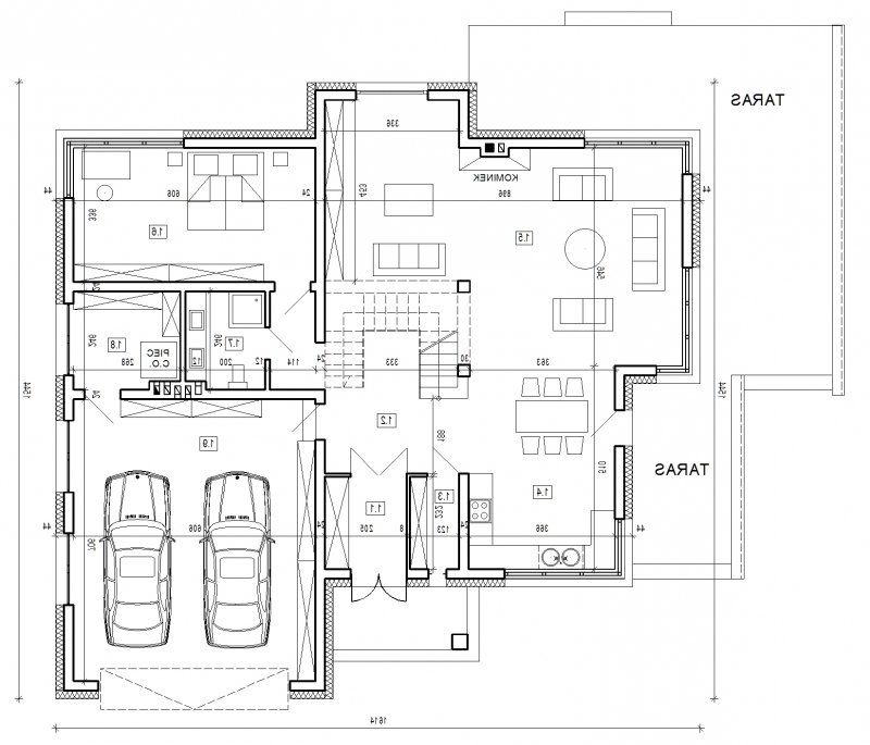
projekt domu piętrowego. dom posiada architekturę współczesnej willi podmiejskiej z nowoczesnymi akcentami. parter domu posiada układ otwarty. klatka schodowa jest ażurowa i tworzy wspólnie z salonem i kuchnią jedną wspólną przestrzeń. w kuchni można wykonać tzw. "wyspę".
projekty o podobnej architekturze dostępne są wyłącznie na zamówienie indywidualne.
energooszczędność:
wersja standardowa:
projekt spełnia wymagania cieplne dla nowo projektowanych domów określone w wt2008 ( rozporządzenie ministra infrastruktury dotyczące "warunków technicznych ,jakim powinny odpowiadać budynki i ich usytuowanie )
charakterystyka energetyczna w granicach 120 [kwh/m2/rok]
wersja energooszczędna:
projekt dostępny w wersji energooszczędnej .czas realizacji zamówienia 10dni.
charakterystyka energetyczna w granicach 75 [kwh/m2/rok]
projekt w tej wersji posiada instalację wentylacji z odzyskiem ciepła oraz zmodyfikowane grubości izolacji fundamentów,podłóg,ścian, stropów i dachu.
PRZEDSIONEK 4.76
HALL 14.50
SCHOWEK 2.85
KUCHNIA 17.75
SALON 45.23
POKÓJ 20.36
ŁAZIENKA 4.81
POM.GOSPODARCZE 6.43
GARAŻ 2 ST. 45.21
PU. PARTERU BEZ GARAŻU: 116.69
RAZEM PU. PARTERU: 161.9