Ściany zewnętrzne 2-warstwowe : Beton komórkowy ( 24cm) / Pustak ceramiczny (25cm) + styropian 20cm Uściany < 0,20 W/(m2*K) – warunek spełniony.
Ławy fundamentowe tradycyjne. Ściany fundamentowe betonowe gr.24(25cm) z bloczków betonowych lub wylewane.
Stropy - płyta żelbetowa . Zamiennie można zastosować strop gęstożeberkowy typu TERIVA .
Konstrukcja dachu - tradycyjna drewniana , pokrycie dachu z dachówki ceramicznej.
Elewacje - pokryte tynkiem strukturalnym cienkowarstwowym.
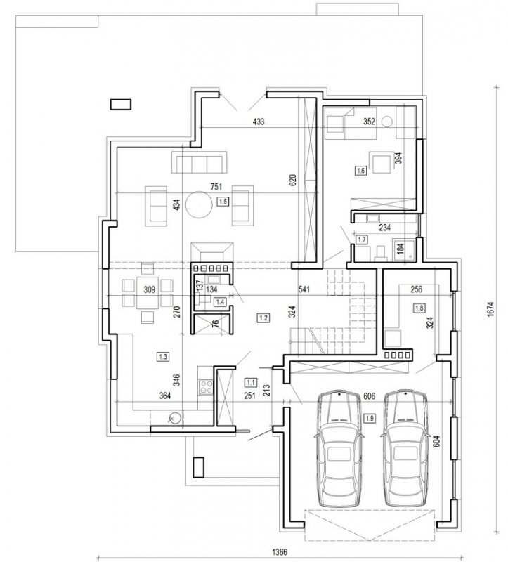
Projekt domu o architekturze współczesnej. Parter domu tworzy wspólna przestrzeń, na którą składa się duży salon wraz kuchnią i jadalnia. W kuchni można zamontować wolnostojącą "wyspę".Piętro domu ma charakter strefy nocnej, w skład której wchodzą sypialnie z garderobami oraz pomieszczeniami sanitarnymi. Dom posiada duże, przestronne pomieszczenia oraz wbudowany szeroki garaż na 2 samochody osobowe.
Istnieje możliwość opracowania pomniejszonej wersji projektu.
Energooszczędność:
Wersja standardowa:
Projekt spełnia wymagania cieplne dla nowo projektowanych domów określone w wt2008 ( rozporządzenie ministra infrastruktury dotyczące "warunków technicznych ,jakim powinny odpowiadać budynki i ich usytuowanie )
charakterystyka energetyczna w granicach 120 [kwh/m2/rok]
Wersja energooszczędna:
Projekt dostępny w wersji energooszczędnej .czas realizacji zamówienia 10dni.
charakterystyka energetyczna w granicach 75 [kwh/m2/rok]
projekt w tej wersji posiada instalację wentylacji z odzyskiem ciepła oraz zmodyfikowane grubości izolacji fundamentów,podłóg,ścian, stropów i dachu.
1.1 PRZEDSIONEK 5.3
1.2 HALL 13.4
1.3 KUCHNIA Z JADALNIĄ 22.7
1.4 WC 1.8
1.5 POKÓJ DZIENNY 41.0
1.6 POKÓJ GOŚCINNY 16.0
1.7 ŁAZIENKA 4.3
1.8 POM. GOSPODARCZE 8.0
1.9 GARAŻ 2 ST. 36.6
PU. PARTERU BEZ GARAŻU 112.5
RAZEM PU. PARTERU 149.1