Ściany zewnętrzne 2-warstwowe : Beton komórkowy ( 24cm) / Pustak ceramiczny (25cm) + styropian 20cm Uściany < 0,20 W/(m2*K) – warunek spełniony.
Ławy fundamentowe tradycyjne. Ściany fundamentowe betonowe gr.24(25cm) z bloczków betonowych lub wylewane.
Stropy - płyta żelbetowa . Zamiennie można zastosować strop gęstożeberkowy typu TERIVA .
Konstrukcja dachu - tradycyjna drewniana , pokrycie dachu z dachówki ceramicznej.
Elewacje - pokryte tynkiem strukturalnym cienkowarstwowym.
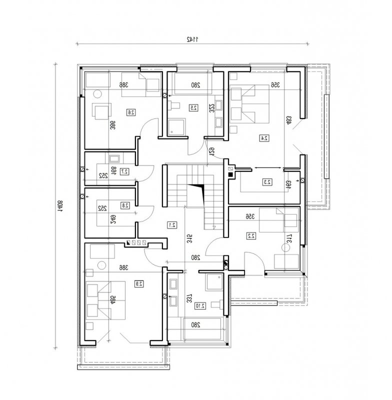
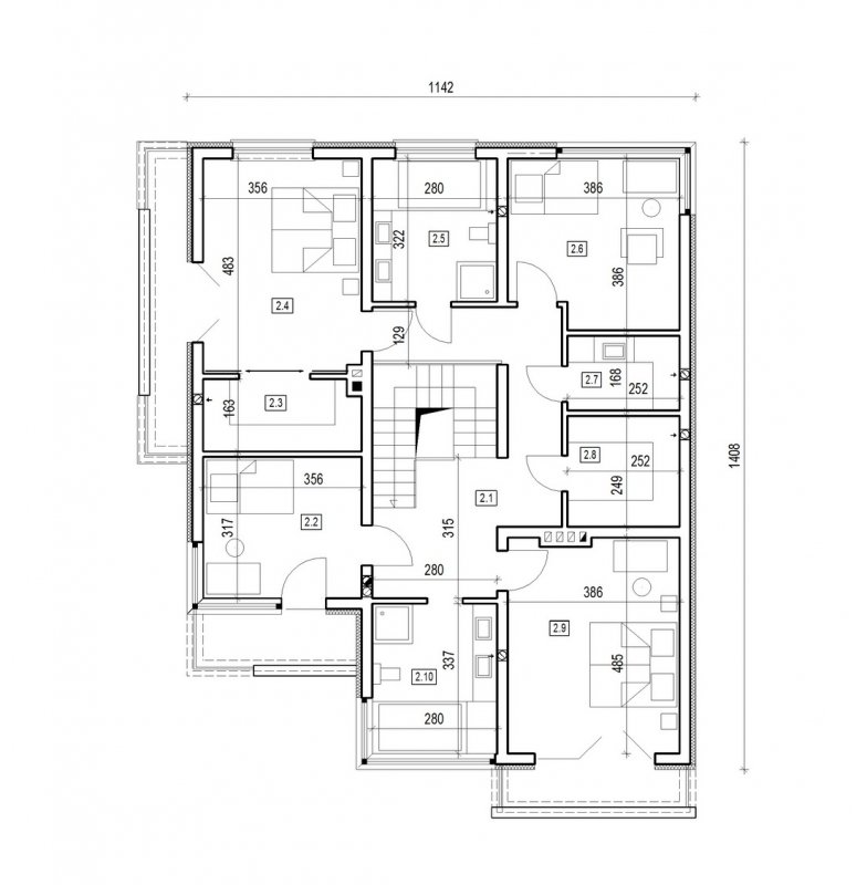
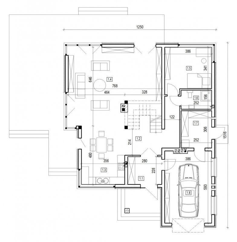
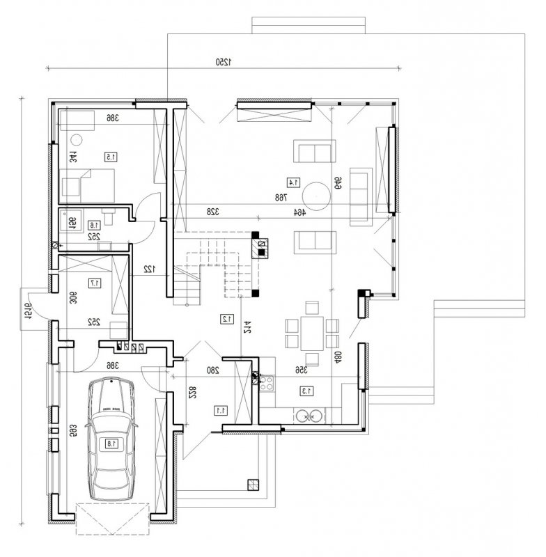
Projekt domu podmiejskiego o architekturze współczesnej. Parter domu tworzy otwartą przestrzeń, na którą składa się salon, kuchnia z jadalnią oraz ażurowa klatka schodowa. Kuchnia możliwa do wykonania w stylu nowoczesnym z miejscem na wolnostojącą "wyspę". Piętro domu ma charakter strefy nocnej w skład, której wchodzą sypialnie z garderobami oraz pomieszczeniami sanitarnymi. projekt jest dobrym rozwiązaniem na wąską działkę. istnieje możliwość opracowania wersji projektu z 2-stanowiskowym garażem.
Energooszczędność:
Wersja standardowa:
 Projekt spełnia wymagania cieplne dla nowo projektowanych domów określone w wt2008 ( rozporządzenie ministra infrastruktury dotyczące "warunków technicznych ,jakim powinny odpowiadać budynki i ich usytuowanie )
 charakterystyka energetyczna w granicach 120 [kwh/m2/rok]
 Wersja energooszczędna:
 Projekt dostępny w wersji energooszczędnej .czas realizacji zamówienia 10dni. 
 charakterystyka energetyczna w granicach 75 [kwh/m2/rok] 
 projekt w tej wersji posiada instalację wentylacji z odzyskiem ciepła oraz zmodyfikowane grubości izolacji fundamentów,podłóg,ścian, stropów i dachu.
1.1 PRZEDSIONEK 6.4
1.2 HALL 13.0
1.3 KUCHNIA 16.2
1.4 POKÓJ DZIENNY 43.0
1.5 POKÓJ 13.7
1.6 WC 3.9
1.7 KOTŁOWNIA 7.7
1.8 GARAŻ 22.6
PU. PARTERU BEZ GARAŻU 103.9
RAZEM PU. PARTERU 126.5
 
					
		 
					
		 
					
		 
					
		 
					
		