Ściany zewnętrzne 2-warstwowe : Beton komórkowy ( 24cm) / Pustak ceramiczny (25cm) + styropian 20cm Uściany < 0,20 W/(m2*K) – warunek spełniony.
Ławy fundamentowe tradycyjne. Ściany fundamentowe betonowe gr.24(25cm) z bloczków betonowych lub wylewane.
Stropy - płyta żelbetowa . Zamiennie można zastosować strop gęstożeberkowy typu TERIVA .
Konstrukcja dachu - tradycyjna drewniana , pokrycie dachu z dachówki ceramicznej.
Elewacje - pokryte tynkiem strukturalnym cienkowarstwowym.
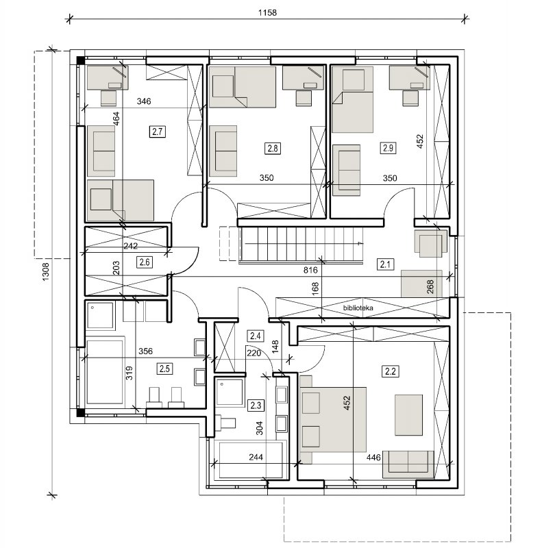
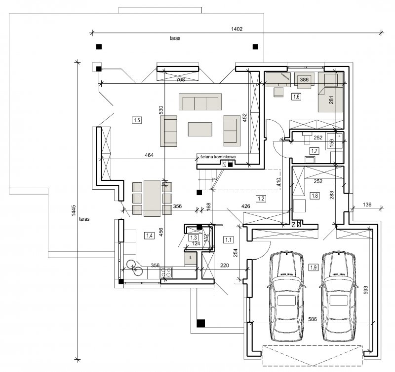
Projekt domu podmiejskiego o architekturze współczesnej. Parter domu tworzy otwartą przestrzeń, na którą składa się salon z otwartą kuchnią. Kuchnia możliwa do wykonania w stylu nowoczesnym z miejscem na wolnostojącą "wyspę". Piętro domu ma charakter strefy nocnej w skład której wchodzą 4 sypialnie z garderobami oraz pomieszczeniami sanitarnymi. W bryle budynku znajduje się wbudowany garaż 2-stanowiskowy.
Energooszczędność:
Wersja standardowa:
Projekt spełnia wymagania cieplne dla nowo projektowanych domów określone w wt2008 (rozporządzenie ministra infrastruktury dotyczące "warunków technicznych, jakim powinny odpowiadać budynki i ich usytuowanie)
charakterystyka energetyczna w granicach 120 [kwh/m2/rok]
Wersja energooszczędna:
Projekt dostępny w wersji energooszczędnej. Czas realizacji zamówienia 10dni.
Charakterystyka energetyczna w granicach 75 [kwh/m2/rok]
projekt w tej wersji posiada instalację wentylacji z odzyskiem ciepła oraz zmodyfikowane grubości izolacji fundamentów,podłóg ,ścian ,stropów i dachu.
1.1 PRZEDSIONEK 4.9
1.2 HALL 6.0
1.3 KUCHNIA I JADALNIA 13.0
1.4 POKÓJ DZIENNY 40.0
1.5 POKÓJ 14.1
1.6 ŁAZIENKA 3.4
1.7 SPIŻARNIA 1.4
1.8 POM.GOSP. 8.0
1.9 GARAŻ 2 ST. 35.7