Ściany zewnętrzne 2-warstwowe : Beton komórkowy ( 24cm) / Pustak ceramiczny (25cm) + styropian 20cm Uściany < 0,20 W/(m2*K) – warunek spełniony.
Ławy fundamentowe tradycyjne. Ściany fundamentowe betonowe gr.24(25cm) z bloczków betonowych lub wylewane.
Stropy - płyta żelbetowa . Zamiennie można zastosować strop gęstożeberkowy typu TERIVA .
Konstrukcja dachu - tradycyjna drewniana , pokrycie dachu z dachówki ceramicznej.
Elewacje - pokryte tynkiem strukturalnym cienkowarstwowym.
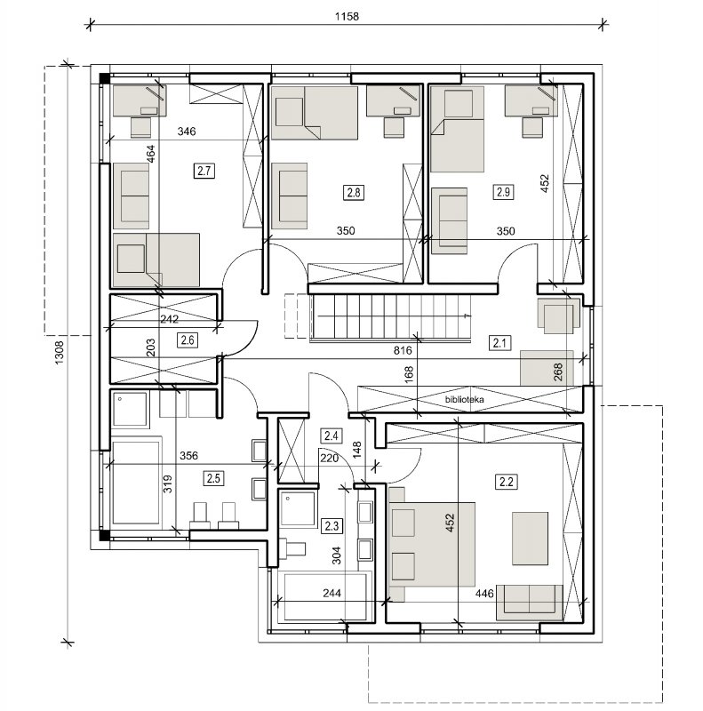
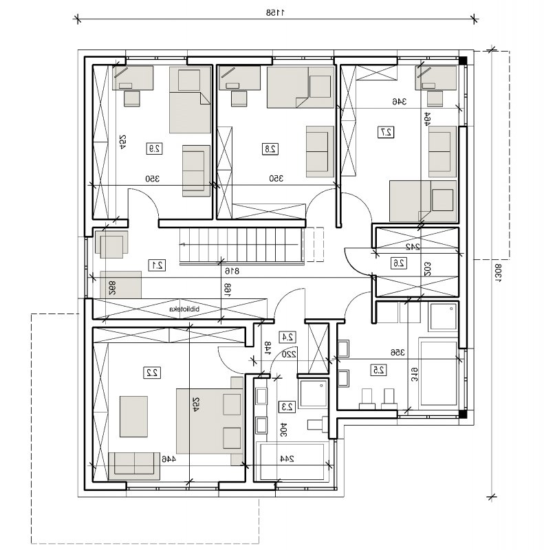
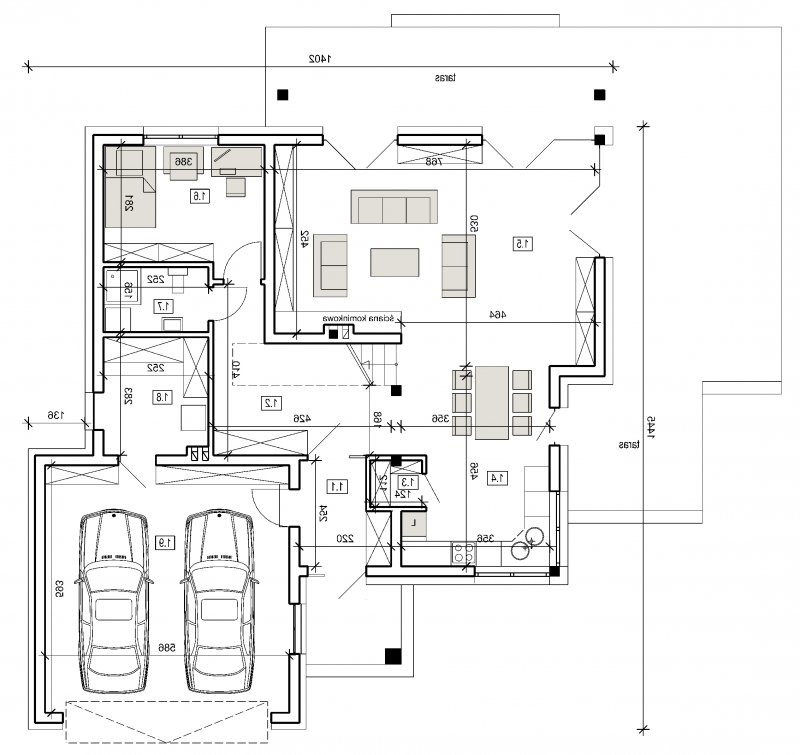
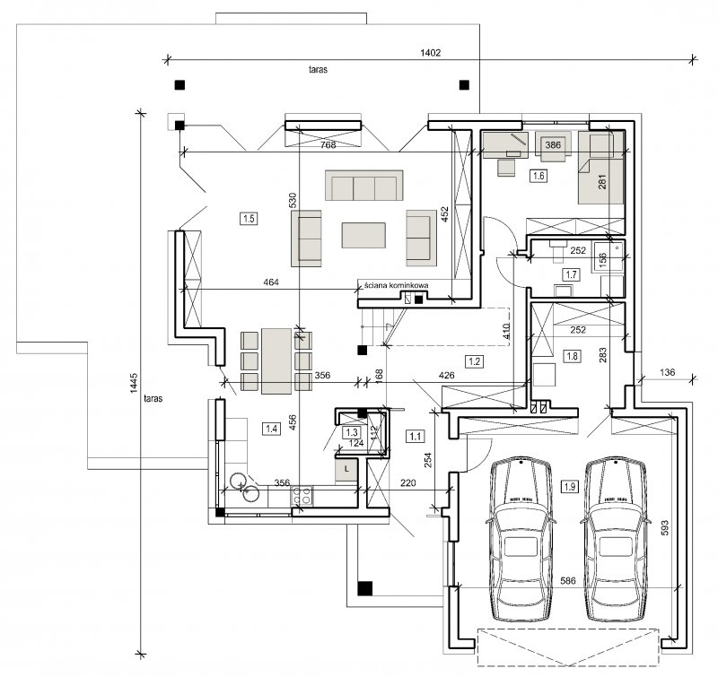
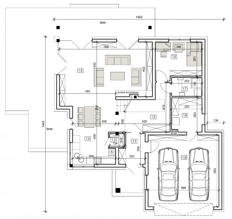
Dom piętrowy w stylu willi miejskiej o współczesnym wyglądzie. Na parterze kuchnia z jadalnią i salon ( o powierzchni 38m2) tworzą otwartą przestrzeń,z salonu znajduje się wyjście na duży, zadaszony taras. Kominek znajdujący się w centralnym miejscu domu można wykonać w stylu nowoczesnym. Schody prowadzące na piętro zostały zaprojektowane jako 1-biegowe w stylu nowoczesnym. Na piętrze znajdują się 3 umieszczone obok siebie identyczne metrażowo sypialnie o powierzchni każda po 15.6m2 oraz jedna większa sypialnia o powierzchni 20m2. Dom posiada wbudowany garaż na 2 samochody osobowe.
Energooszczędność:
Wersja standardowa:
Projekt spełnia wymagania cieplne dla nowo projektowanych domów określone w wt2008 ( rozporządzenie ministra infrastruktury dotyczące "warunków technicznych ,jakim powinny odpowiadać budynki i ich usytuowanie )
charakterystyka energetyczna w granicach 120 [kwh/m2/rok]
Wersja energooszczędna:
Projekt dostępny w wersji energooszczędnej .czas realizacji zamówienia 10dni.
Charakterystyka energetyczna w granicach 75 [kwh/m2/rok]
projekt w tej wersji posiada instalację wentylacji z odzyskiem ciepła oraz zmodyfikowane grubości izolacji fundamentów,podłóg,ścian, stropów i dachu.
1.1 Przedsionek 4.7
1.2 Hall 10.0
1.3 Spiżarnia 1.3
1.4 Kuchnia z jadalnią 15.2
1.5 Pokój dzienny 38.0
1.6 Pokój 11.2
1.7 Łazienka 3.8
1.8 Pom.gospodarcze 6.9
1.9 Garaż 2stanowiskowy 34.2
Razem p.u. parteru bez garażu 91.1
z garażem 125.3