Ściany zewnętrzne 2-warstwowe : Beton komórkowy ( 24cm) / Pustak ceramiczny (25cm) + styropian 20cm Uściany < 0,20 W/(m2*K) – warunek spełniony.Ławy fundamentowe tradycyjne. Ściany fundamentowe betonowe gr.24(25cm) z bloczków betonowych lub wylewane.
Stropy - płyta żelbetowa . Zamiennie można zastosować strop gęstożeberkowy typu TERIVA .
Konstrukcja dachu - tradycyjna drewniana , pokrycie dachu z dachówki ceramicznej.
Elewacje - pokryte tynkiem strukturalnym cienkowarstwowym.
Kocioł gazowy - projekt zawiera wewnętrzną instalację gazową.
Kocioł na paliwo stałe - jako rozwiązanie zamienne
Kominek - w każdym projekcie zaprojektowany jest kominek jako wspomagające źródło ogrzewania.
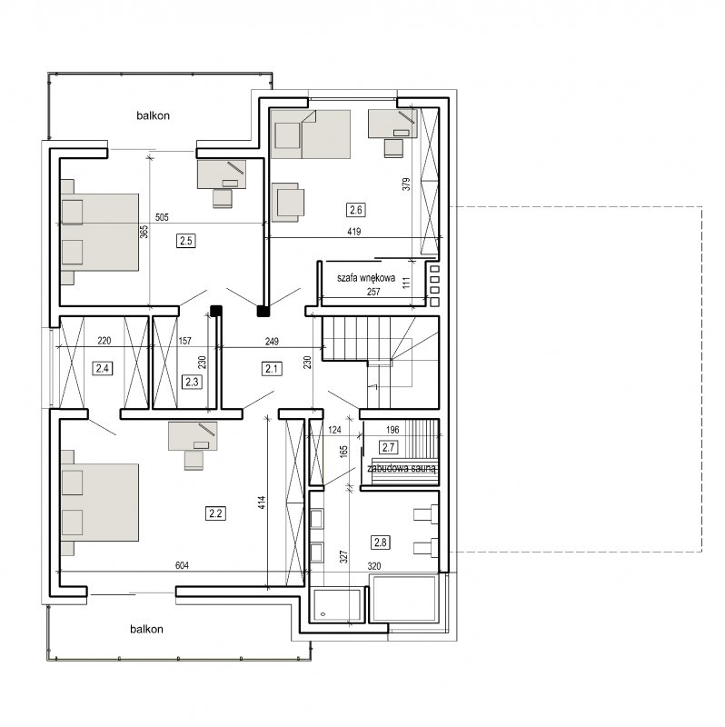
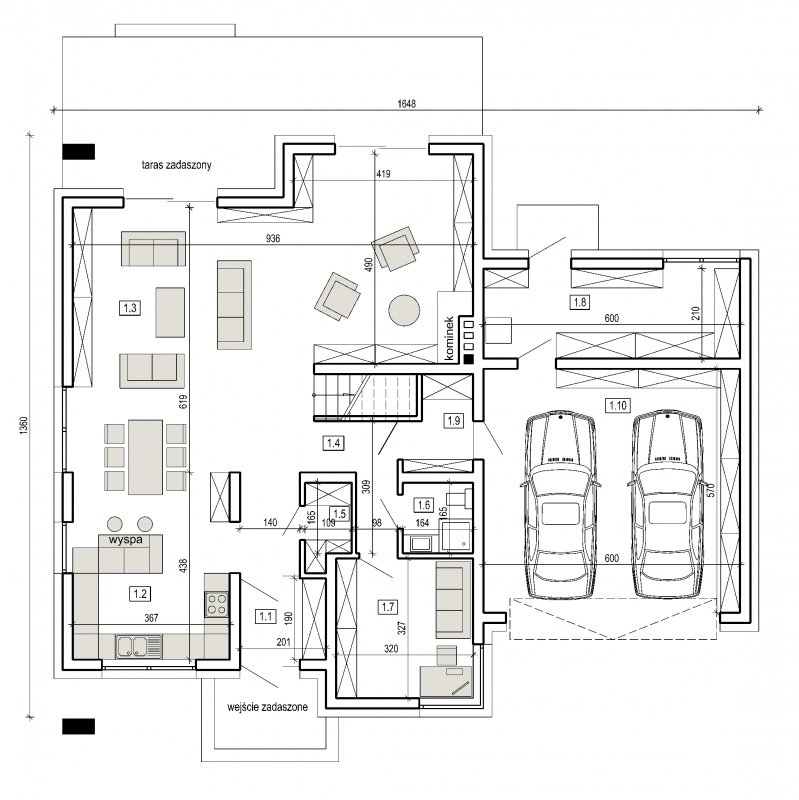
Dom o architekturze współczesnej do realizacji na działkach podmiejskich umożliwiających postawienie domu piętrowego. układ domu jest prosty i przejrzysty, na parterze część dzienna - kuchnia z możliwością montażu tzw"wyspy" , duży salon, duże pomieszczenie gospodarcze z wyjściem na ogród, wygodny garaż na 2 samochody. na piętrze umieszczono pomieszczenia charakterystyczne dla strefy nocnej czyli : sypialnie oraz łazienki i garderoby.
wersja standardowa:
projekt spełnia wymagania cieplne dla nowo projektowanych domów określone w wt2008 ( rozporządzenie ministra infrastruktury dotyczące "warunków technicznych ,jakim powinny odpowiadać budynki i ich usytuowanie )
charakterystyka energetyczna w granicach 120 [kwh/m2/rok]
wersja energooszczędna:
projekt dostępny w wersji energooszczędnej .czas realizacji zamówienia 10dni.
charakterystyka energetyczna w granicach 75 [kwh/m2/rok]
projekt w tej wersji posiada instalację wentylacji z odzyskiem ciepła oraz zmodyfikowane grubości izolacji fundamentów,podłóg,ścian, stropów i dachu.
1.1 Przedsionek 3.70
1.2 Kuchnia z wyspą 15.90
1.3 Pokój dzienny 49.90
1.4 Przedpokój 9.35
1.5 Schowek/spiżarnia 2.00
1.6 Łazienka 2.60
1.7 Gabinet 10.26
1.8 Pom.gospodarcze 12.45
1.9 Komunikacja 3.20
1.10 Garaż 2st. 33.80