Dane techniczne
- Powierzchnia użytkowa 174.79 m²
- Powierzchnia zabudowy 160.18 m²
- Kubatura 602.00 m³
- Kąt nachylenia dachu 2.00°
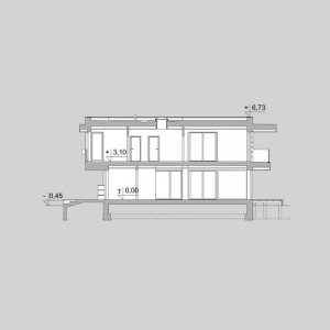
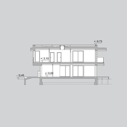
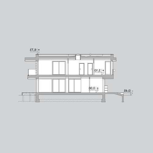
- Wysokość budynku 7.18 m
- Min. wymiary działki 20.88x24.42 m
- Garaż 34.80 m²
- Pracownia LK & Projekt
Technologia budowy
Ławy fundamentowe: żelbetowe z betonu klasy C20/25
Ściany fundamentowe: bloczki betonowe zalewowe o gr. 25, 30 cm
Ściany zewnętrzne: pustak ceramiczny POROTHERM 30 T DRYFIX firmy Wienerberger o gr. 30 cm, styropian SILVER Fundament firmy Termo Organika o gr. 12 cm
Ściany wewnętrzne: pustaki ceramiczne Porotherm firmy Wienerberger gr. 25cm, 11,5 cm
Strop żelbetowy, monolityczny
Konstrukcja dachu: stropodach żelbetowy, płyta izolacyjna BauderPir FA o gr. 18 cm
Pokrycie dachu: papa zgrzewalna BauderKARAT, blacha tytan-cynk
Elewacje: tynk zewn. silikonowy,okładzina z elewacyjnych płytek granitowych gr. 2 cm, boniowanie ozdobne o gr. 2 cm
Okna i drzwi balkonowe: aluminiowe
Sposób ogrzewania: gazowe
Wentylacja: mechaniczna z rekuperacją
Opis
Nowoczesny, piętrowy dom z płaskim dachem i dwustanowiskowym garażem. Sprosta oczekiwaniom nawet najbardziej wymagających osób. Parter to dzienna strefa domu. Duże przeszklenia stanowią niewątpliwie wielki atut prezentowanego projektu. Zarówno z kuchni, salonu i jadalni prowadzą wyjścia na taras. Piętro to nocna strefa domu. Trzy sypialnie i garderoba stanowią idealną ilość pokoi dla rodziny z dwojgiem dzieci. Projekt domu LK&1263 skierowany jest dla osób lubiących elegancki, nowoczesny styl.
Rzuty
PARTER
- Sień 7,99 m2
- Hall 7,33 m2
- Kuchnia 22,25 m2
- Pokój dzienny z jadalnią 39,90 m2
- WC 2,00 m2
- Kotłownia 4,34 m2
- Garaż 34,80 m2
PIĘTRO
- Hall 14,43 m2
- Łazienka 10,85 m2
- Sypialnia 14,81 m2
- Sypialnia 2 15,12 m2
- Sypialnia 3 20,40 m2
- Łazienka 2 9,26 m2
- Garderoba 8,42 m2
- Pralnia 2,03 m2
Rzuty
PARTER
- Sień 7,99 m2
- Hall 7,33 m2
- Kuchnia 22,25 m2
- Pokój dzienny z jadalnią 39,90 m2
- WC 2,00 m2
- Kotłownia 4,34 m2
- Garaż 34,80 m2
PIĘTRO
- Hall 14,43 m2
- Łazienka 10,85 m2
- Sypialnia 14,81 m2
- Sypialnia 2 15,12 m2
- Sypialnia 3 20,40 m2
- Łazienka 2 9,26 m2
- Garderoba 8,42 m2
- Pralnia 2,03 m2
Dbamy o swoich Klientów, jak nikt inny!
Do każdego projektu zakupionego za pośrednictwem serwisu kreoDOM.pl otrzymasz książeczkę z rabatami na zakupy w firmach Komfort, Fachowiec, Domino Łazienki, Komandor, Witek Home i innych. Książeczka na pewno okaże się przydatna podczas urządzania Twojego wymarzonego domu!
Książeczka z rabatami do takich firm jak: Komfort, Domino Łazienki, Fachowiec, Vox, Komandor, Witek Home i innych
Gwarancja
bezpiecznych zakupów
Dodatkowe pakiety projektowe
- Kosztorys inwestorski cena ustalana indywidualnie
- Kolektory słoneczne cena ustalana indywidualnie
- Kominek z DGP cena ustalana indywidualnie
- Wentylacja mechaniczna z rekuperacją cena ustalana indywidualnie
- Pompa ciepła cena ustalana indywidualnie