Dane techniczne
- Powierzchnia użytkowa 171.58 m²
- Powierzchnia zabudowy 204.95 m²
- Kubatura 624.71 m³
- Kąt nachylenia dachu 3.00°
- Powierzchnia dachu 95.71 m²
- Wysokość budynku 7.35 m
- Min. wymiary działki 27.50x21.70 m
- Garaż 46.75 m²
- Pracownia LK & Projekt
Technologia budowy
- Wentylacja: mechaniczna
- Sposób ogrzewania: kocioł na gaz
- Pokrycie dachu: żwir
- Elewacje: tynk silikonowy, cokół: płyty kamienne naturalne
- Okna i drzwi balkonowe: aluminiowe
- Strop: gęstożebrowy firmy Rector
- Konstrukcja dachu: stropodach gęstożebrowy firmy Rector z uzupełnieniem części zadaszeń płytami żelbetowymi
- Ściany wewnętrzne: konstrukcyjne bloczki Silka E24 o gr. 24 cm dziaowe - bloczki Silka E12 o gr. cm
- Ściany zewnętrzne: pustak Ytong Energo 48 gr. 48 cm
- Ściany fundamentowe: betonowe, wylewane o gr. 28 cm
- Ławy fundamentowe: żelbetowe
- Koszt orientacyjny (bez Vat): 447 601.00 zł.
Opis
Dom jednorodzinny, piętrowy z garażem dwustanowiskowym.
Rzuty
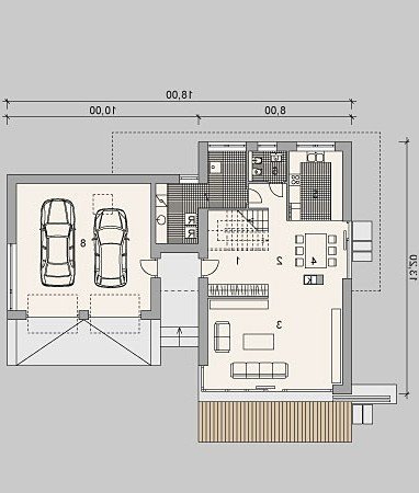
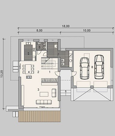
PARTER
Parter
1. Sień 7.61m
2. Korytarz
8.79m
3. Pokój dzienny 31.96m
4. Jadalnia 11.72m
5. Kuchnia 10.15m
6. WC 3.16m
7. Kotłownia z pralnią 14.06m
8. Garaż 46.75m
PIĘTRO
Piętro
1. Hall 12.34m
2. Sypialnia 13.64m
3. Sypialnia 2 13.93m
4. Pomieszczenie gospodarcze 2.91m
5. Łazienka 10.58m
6. Sypialnia 3
21.99m
7. Garderoba 8.74m
Rzuty
PARTER
Parter
1. Sień 7.61m
2. Korytarz
8.79m
3. Pokój dzienny 31.96m
4. Jadalnia 11.72m
5. Kuchnia 10.15m
6. WC 3.16m
7. Kotłownia z pralnią 14.06m
8. Garaż 46.75m
PIĘTRO
Piętro
1. Hall 12.34m
2. Sypialnia 13.64m
3. Sypialnia 2 13.93m
4. Pomieszczenie gospodarcze 2.91m
5. Łazienka 10.58m
6. Sypialnia 3
21.99m
7. Garderoba 8.74m
Dbamy o swoich Klientów, jak nikt inny!
Do każdego projektu zakupionego za pośrednictwem serwisu kreoDOM.pl otrzymasz książeczkę z rabatami na zakupy w firmach Komfort, Fachowiec, Domino Łazienki, Komandor, Witek Home i innych. Książeczka na pewno okaże się przydatna podczas urządzania Twojego wymarzonego domu!
Książeczka z rabatami do takich firm jak: Komfort, Domino Łazienki, Fachowiec, Vox, Komandor, Witek Home i innych
Gwarancja
bezpiecznych zakupów
Dodatkowe pakiety projektowe
- Kosztorys inwestorski cena ustalana indywidualnie
- Kolektory słoneczne cena ustalana indywidualnie
- Kominek z DGP cena ustalana indywidualnie
- Wentylacja mechaniczna z rekuperacją cena ustalana indywidualnie
- Pompa ciepła cena ustalana indywidualnie