Dane techniczne
- Powierzchnia użytkowa 181.96 m²
- Powierzchnia zabudowy 205.00 m²
- Kubatura 668.00 m³
- Kąt nachylenia dachu 30.00°
- Powierzchnia dachu 132.00 m²
- Wysokość budynku 11.34 m
- Min. wymiary działki 32.99x19.90 m
- Garaż 34.80 m²
- Pracownia LK & Projekt
Technologia budowy
- Sposób ogrzewania: kocioł na gaz, podgrzewanie cwu wspomagane kolektorami słonecznymi, ogrzewanie podłogowe
- Wentylacja: mechaniczna z rekuperacją
- Elewacje: wykończone tynkiem silikonowym, płyty warstwowe YAWALBOND firmy Yawal; cokół obłożony cegłą klinkierową
- Okna i drzwi balkonowe: aluminiowe firmy Yawal
- Strop: żelbetowy
- Konstrukcja dachu: drewniana docieplona wełną mineralną gr. 30 cm; konstrukcja stropodachu: żelbetowa
- Pokrycie dachu: dachówką ceramiczną firmy Wienerberger, Actua 10; pokrycie stropodachu: warstwą żwiru płukanego frakcji 16/32 mm o gr. 8 cm na papie nawierzchniowej BauderKARAT firmy Bauder
- Ściany wewnętrzne: z pustaków ceramicznych MEGA-MAX 250/238 P+W firmy CERPOL o gr. 25 cm oraz miniMAX 115/238 P+W firmy CERPOL o gr. 11,5 cm
- Ławy fundamentowe: żelbetowe
- Ściany fundamentowe: z pustaków betonowych o gr.24 cm, ocieplone styropianem ekstrudowanym o gr.20 cm firmy Termo Organika
- Ściany zewnętrzne: z pustaków ceramicznych MEGA-MAX 300/238 P+W firmy CERPOL o gr. 30 cm, ocieplone styropianem Gold fasada firmy Termo Organika o gr.20 cm
- Koszt orientacyjny (bez Vat): 880 000.00 zł.
Opis
Nowoczesny dom o powierzchni użytkowej 181.96 m². Posiada przestronny taras, który został umiejscowiony od południa, po to, aby cieszyć się długimi i słonecznymi popołudniami.
Rzuty
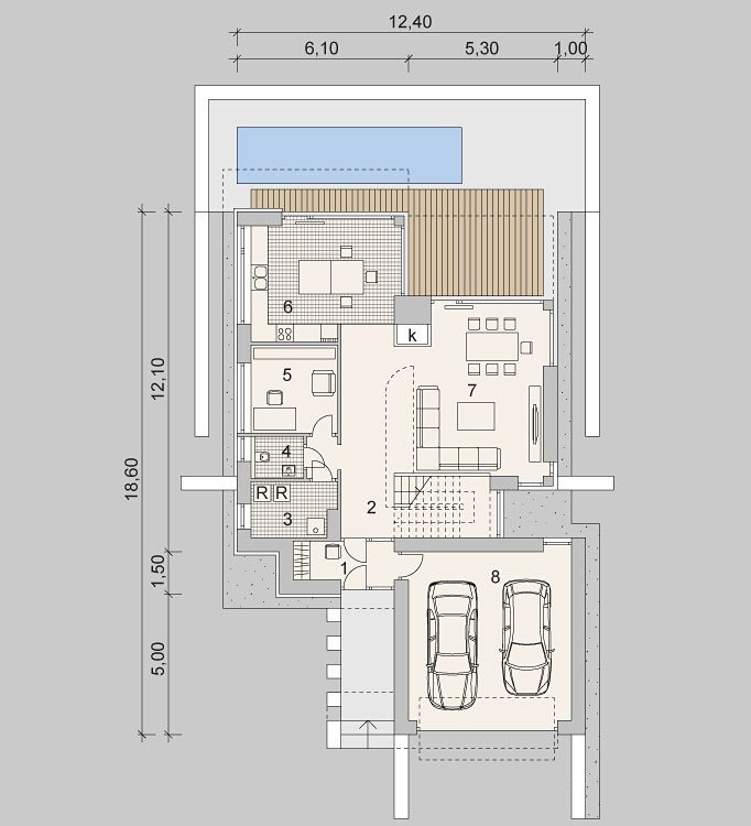
PARTER
- Sień 7,99 m²
- Hall 16,09 m²
- Kotłownia 5,77 m²
- WC 2,80 m²
- Gabinet 9,65 m²
- Kuchnia 19,79 m²
- Pokój dzienny z jadalnią 30,62 m²
- Garaż 34,80 m²
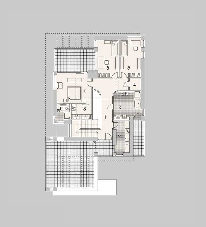
PIĘTRO
- Sypialnia 213,33 m²
- Sypialnia 316,29 m²
Rzuty
PARTER
- Sień 7,99 m²
- Hall 16,09 m²
- Kotłownia 5,77 m²
- WC 2,80 m²
- Gabinet 9,65 m²
- Kuchnia 19,79 m²
- Pokój dzienny z jadalnią 30,62 m²
- Garaż 34,80 m²
PIĘTRO
- Sypialnia 213,33 m²
- Sypialnia 316,29 m²
Dbamy o swoich Klientów, jak nikt inny!
Do każdego projektu zakupionego za pośrednictwem serwisu kreoDOM.pl otrzymasz książeczkę z rabatami na zakupy w firmach Komfort, Fachowiec, Domino Łazienki, Komandor, Witek Home i innych. Książeczka na pewno okaże się przydatna podczas urządzania Twojego wymarzonego domu!
Książeczka z rabatami do takich firm jak: Komfort, Domino Łazienki, Fachowiec, Vox, Komandor, Witek Home i innych
Gwarancja
bezpiecznych zakupów
Dodatkowe pakiety projektowe
- Kosztorys inwestorski cena ustalana indywidualnie
- Kolektory słoneczne cena ustalana indywidualnie
- Kominek z DGP cena ustalana indywidualnie
- Wentylacja mechaniczna z rekuperacją cena ustalana indywidualnie
- Pompa ciepła cena ustalana indywidualnie