Dane techniczne
- Powierzchnia użytkowa 168.36 m²
- Powierzchnia zabudowy 208.71 m²
- Kubatura 571.50 m³
- Kąt nachylenia dachu 2.00°
- Powierzchnia dachu 187.12 m²
- Wysokość budynku 7.45 m
- Min. wymiary działki 40.40x16.90 m
- Garaż 36.31 m²
- Pracownia LK & Projekt
Technologia budowy
- Sposób ogrzewania: kocioł na gaz
- Wentylacja: mechaniczna z rekuperacją
- Elewacje: wykończone tynkiem silikonowym, na fragmentach okładziną drewniana
- Okna i drzwi balkonowe: aluminiowe
- Pokrycie dachu: stropodach zielony, wg. systemu firmy Bauder
- Strop: żelbetowy
- Konstrukcja dachu: stropodach żelbetowy, wg. systemu firmy Bauder
- Ściany wewnętrzne: z pustaków ceramicznych 'Porotherm Profi' gr. 25, 11.5 cm firmy Wienerberger
- Ławy fundamentowe: żelbetowe
- Ściany fundamentowe: z pustaków szalunkowych o gr.30 i 25 cm, ocieplone styropianem 'Gold fundament' o gr.20 cm firmy Termo Organika
- Ściany zewnętrzne: z pustaków ceramicznych 'Porotherm Profi' o gr.30 cm firmy Wienerberger, ocieplone styropianem 'Platinum Fasada' gr. 20 cm firmy Termo Organika
- Stan na kwartał: II 2014 zł.
- Roboty budowlane stanu zerowego: 69 396.93 zł.
- Stan surowy zadaszony: 154 375.99 zł.
- Stolarka: 134 127.90 zł.
- Roboty budowlane stanu wykończeniowego: 228 024.37 zł.
- Instalacje: 114 320.00 zł.
- Koszt budowy ogółem (bez VAT): 700 245.19 zł.
Opis
Nowoczesnego dom jednorodzinny. Posiada garaż, kotłownie oraz basen. Głównym atutem domu są niewątpliwie wielkie okna, które pozwalają na naturalne oświetlenie pomieszczeń oraz tworzą niepowtarzalny, śmiały i nieco industrialny kilmat temu projektowi.
Rzuty
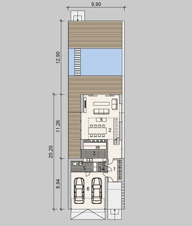
RZUT PARTERU
- Sień 7,48 m2
- Pokój dzienny z jadalnią 59,17 m2
- Kuchnia 14,53 m2
- Łazienka 2,59 m2
- Kotłownia 7,70 m2
- Garaż 36,31 m2
RZUT PIĘTRA
- Hall 11,80 m2
- Pralnia 5,92 m2
- Sypialnia 18,97 m2
- Sypialnia 2 18,97 m2
- Łazienka 5,81 m2
- Sypialnia 3 23,12 m2
Rzuty
RZUT PARTERU
- Sień 7,48 m2
- Pokój dzienny z jadalnią 59,17 m2
- Kuchnia 14,53 m2
- Łazienka 2,59 m2
- Kotłownia 7,70 m2
- Garaż 36,31 m2
RZUT PIĘTRA
- Hall 11,80 m2
- Pralnia 5,92 m2
- Sypialnia 18,97 m2
- Sypialnia 2 18,97 m2
- Łazienka 5,81 m2
- Sypialnia 3 23,12 m2
Dbamy o swoich Klientów, jak nikt inny!
Do każdego projektu zakupionego za pośrednictwem serwisu kreoDOM.pl otrzymasz książeczkę z rabatami na zakupy w firmach Komfort, Fachowiec, Domino Łazienki, Komandor, Witek Home i innych. Książeczka na pewno okaże się przydatna podczas urządzania Twojego wymarzonego domu!
Książeczka z rabatami do takich firm jak: Komfort, Domino Łazienki, Fachowiec, Vox, Komandor, Witek Home i innych
Gwarancja
bezpiecznych zakupów
Dodatkowe pakiety projektowe
- Kosztorys inwestorski cena ustalana indywidualnie
- Kolektory słoneczne cena ustalana indywidualnie
- Kominek z DGP cena ustalana indywidualnie
- Wentylacja mechaniczna z rekuperacją cena ustalana indywidualnie
- Pompa ciepła cena ustalana indywidualnie