Dane techniczne
- Powierzchnia użytkowa 171.58 m²
- Powierzchnia zabudowy 205.00 m²
- Kubatura 625.00 m³
- Kąt nachylenia dachu 3.00°
- Powierzchnia dachu 95.71 m²
- Wysokość budynku 7.35 m
- Min. wymiary działki 27.50x21.20 m
- Garaż 46.75 m²
- Pracownia LK & Projekt
Technologia budowy
- Okna i drzwi balkonowe: aluminiowe
- Elewacje: wykończone tynkiem silikonowym, cegłą klinkierową Terca Stratus firmy Wienerberger
- Pokrycie dachu: żwir, izolacja przeciwwodna, ocieplenie
- Strop: żelbetowy
- Konstrukcja dachu: stropodach żelbetowy
- Ściany wewnętrzne: z pustaków ceramicznych Porotherm gr. 25, 11.5 cm firmy Wienerberger
- Ściany zewnętrzne: z pustaków ceramicznych 'Porotherm 44 Si' firmy Wienerberger
- Ławy fundamentowe: żelbetowe
- Ściany fundamentowe: z pustaków szalunkowych o gr.30 cm, ocieplone styropianem o gr.15 cm
- Sposób ogrzewania: kocioł na gaz
- Wentylacja: mechaniczna z rekuperacją
- Koszt orientacyjny (bez Vat): 447 601.00 zł.
Opis
Projekt nowoczesnego domu piętrowego. Na parterze znajduje się przestronny pokój dzienny z jadalnią, toaleta oraz pralnia z kotłownią, obok której ustytuowany został garaż. Na pietrze znajdują się trzy sypialnie, garderoba oraz pomieszczenie gospodarcze.
Rzuty
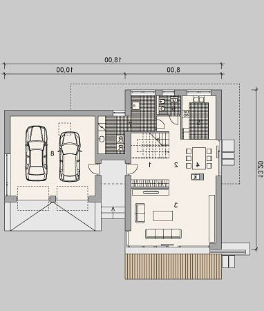
PARTER
Parter
1. Sień 7.61m
2. Hall 8.79m
3. Pokój dzienny 31.96m
4. Jadalnia 11.72m
5. Kuchnia 10.15m
6. WC 3.16m
7. Pralnia z kotłownią 14.06m
8. Garaż 46.75m
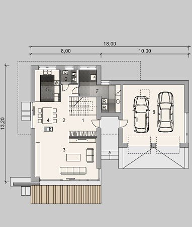
PIĘTRO
Piętro
1. Hall 12.34m
2. Sypialnia 13.64m
3. Sypialnia 2 13.93m
4. Pomieszczenie gospodarcze 2.91m
5. Łazienka 10.58m
6. Sypialnia 3
21.99m
7. Garderoba 8.74m
Rzuty
PARTER
Parter
1. Sień 7.61m
2. Hall 8.79m
3. Pokój dzienny 31.96m
4. Jadalnia 11.72m
5. Kuchnia 10.15m
6. WC 3.16m
7. Pralnia z kotłownią 14.06m
8. Garaż 46.75m
PIĘTRO
Piętro
1. Hall 12.34m
2. Sypialnia 13.64m
3. Sypialnia 2 13.93m
4. Pomieszczenie gospodarcze 2.91m
5. Łazienka 10.58m
6. Sypialnia 3
21.99m
7. Garderoba 8.74m
Dbamy o swoich Klientów, jak nikt inny!
Do każdego projektu zakupionego za pośrednictwem serwisu kreoDOM.pl otrzymasz książeczkę z rabatami na zakupy w firmach Komfort, Fachowiec, Domino Łazienki, Komandor, Witek Home i innych. Książeczka na pewno okaże się przydatna podczas urządzania Twojego wymarzonego domu!
Książeczka z rabatami do takich firm jak: Komfort, Domino Łazienki, Fachowiec, Vox, Komandor, Witek Home i innych
Gwarancja
bezpiecznych zakupów
Dodatkowe pakiety projektowe
- Kosztorys inwestorski cena ustalana indywidualnie
- Kolektory słoneczne cena ustalana indywidualnie
- Kominek z DGP cena ustalana indywidualnie
- Wentylacja mechaniczna z rekuperacją cena ustalana indywidualnie
- Pompa ciepła cena ustalana indywidualnie