Ściany zewnętrzne 2-warstwowe : Beton komórkowy ( 24cm) / Pustak ceramiczny (25cm) + styropian 20cm Uściany < 0,20 W/(m2*K) – warunek spełniony.
Ławy fundamentowe tradycyjne. Ściany fundamentowe betonowe gr.24(25cm) z bloczków betonowych lub wylewane.
Stropy - płyta żelbetowa . Zamiennie można zastosować strop gęstożeberkowy typu TERIVA .
Konstrukcja dachu - tradycyjna drewniana , pokrycie dachu z dachówki ceramicznej.
Elewacje - pokryte tynkiem strukturalnym cienkowarstwowym.
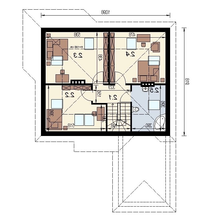
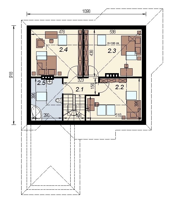
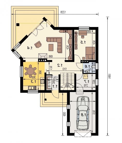
Na małej przestrzeni uwzględniono program funkcjonalny dla 5 osobowej rodziny. dom posiada dobrze doświetlony pokój dzienny z wyjściem na zadaszony taras. Ścięty narożnik salonu jest elementem, który przyczynia się do lepszego usytuowania budynku na działce. na poddaszu zlokalizowano 3 duże, ustawne sypialnie. dom posiada garaż na 1 samochód osobowy. projekt jest opracowany ekonomicznie i w trakcie budowy nie stwarza problemów wykonawczych. projekty podobne: dj 15, dj 4.
Możliwe jest wykonanie projektu z garażem na 2 samochody.
Energooszczędność:
Wersja standardowa:
projekt spełnia wymagania cieplne dla nowo projektowanych domów określone w wt2008 ( rozporządzenie ministra infrastruktury dotyczące "warunków technicznych ,jakim powinny odpowiadać budynki i ich usytuowanie )
charakterystyka energetyczna w granicach 120 [kwh/m2/rok]
Wersja energooszczędna:
Projekt dostępny w wersji energooszczędnej .czas realizacji zamówienia 10dni.
charakterystyka energetyczna w granicach 75 [kwh/m2/rok]
projekt w tej wersji posiada instalację wentylacji z odzyskiem ciepła oraz zmodyfikowane grubości izolacji fundamentów,podłóg,ścian, stropów i dachu.