Dane techniczne
- Powierzchnia użytkowa 107.10 m²
- Powierzchnia zabudowy 115.88 m²
- Kubatura 382.00 m³
- Kąt nachylenia dachu 42.00°
- Powierzchnia dachu 212.00 m²
- Wysokość budynku 8.56 m
- Min. wymiary działki 17.43x23.68 m
- Garaż 17.64 m²
- Pracownia LK & Projekt
Technologia budowy
- Okna i drzwi balkonowe: drewniane
- Sposób ogrzewania: kocioł na gaz
- Wentylacja: mechaniczna z rekuperacją
- Pokrycie dachu: dachówka ceramiczna Koramic firmy Wienerberger Actua 10, kolor: grafitowa angoba szlachetna
- Elewacje: wykończone tynkiem silikonowym, płytkami klinkierowymi firmy Wienerberger
- Strop: żelbetowy
- Konstrukcja dachu: drewniana docieplona wełną mineralną gr. 30 cm firmy Rockwool
- Ławy fundamentowe: żelbetowe
- Ściany fundamentowe: pustaki szalunkowe o gr. 30 cm, styropian Gold Fundement o gr.20 cm firmy Termo Organika
- Ściany zewnętrzne: pustaki ceramiczne Porotherm Profi o gr. 30 cm firmy Wienerberger, styropian Gold Fasada o gr. 20 cm firmy Termo Organika
- Ściany wewnętrzne: pustaki ceramiczne Porotherm Profi o gr. 25 cm i 11,5 cm firmy Wienerberger
- Koszt orientacyjny (bez Vat): 407 418.00 zł.
Opis
Projekt domu z poddaszem. Posiada podpiwniczenie oraz garaż.
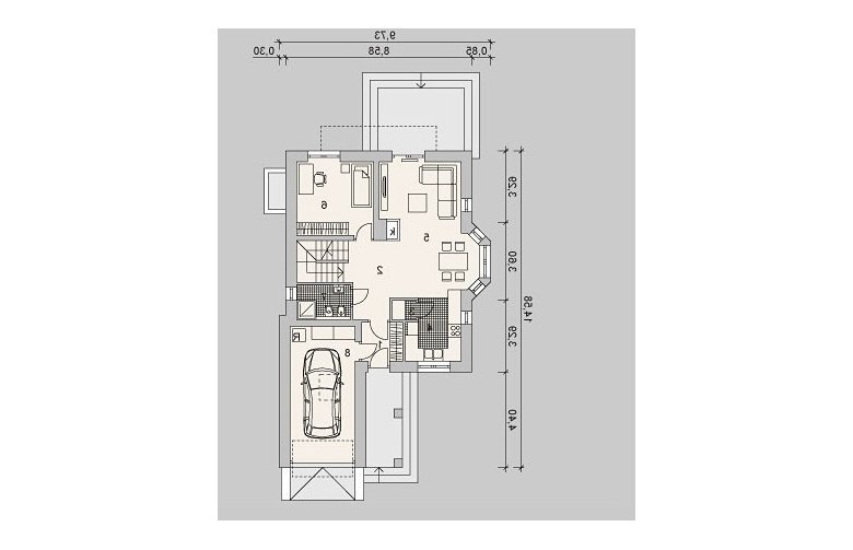
Rzuty
PIWNICA
1.Korytarz2,69 m²
2.Pralnia z kotłownią12,00 m²
3.Pomieszczenie gospodarcze5,73 m²
1.Sień3,37 m²
2.Hall6,42 m²
3.Spiżarka1,00 m²
4.Kuchnia7,05 m²
5.Pokój dzienny z jadalnią23,44 m²
6.Sypialnia12,00 m²
7.Łazienka4,01 m²
8.Garaż18,60 m²
- Sypialnia 214,81 m²(16,82
- Sypialnia 310,18 m²(12,91
Rzuty
PIWNICA
1.Korytarz2,69 m²
2.Pralnia z kotłownią12,00 m²
3.Pomieszczenie gospodarcze5,73 m²
1.Sień3,37 m²
2.Hall6,42 m²
3.Spiżarka1,00 m²
4.Kuchnia7,05 m²
5.Pokój dzienny z jadalnią23,44 m²
6.Sypialnia12,00 m²
7.Łazienka4,01 m²
8.Garaż18,60 m²
- Sypialnia 214,81 m²(16,82
- Sypialnia 310,18 m²(12,91
Dbamy o swoich Klientów, jak nikt inny!
Do każdego projektu zakupionego za pośrednictwem serwisu kreoDOM.pl otrzymasz książeczkę z rabatami na zakupy w firmach Komfort, Fachowiec, Domino Łazienki, Komandor, Witek Home i innych. Książeczka na pewno okaże się przydatna podczas urządzania Twojego wymarzonego domu!
Książeczka z rabatami do takich firm jak: Komfort, Domino Łazienki, Fachowiec, Vox, Komandor, Witek Home i innych
Gwarancja
bezpiecznych zakupów
Dodatkowe pakiety projektowe
- Kosztorys inwestorski cena ustalana indywidualnie
- Kolektory słoneczne cena ustalana indywidualnie
- Kominek z DGP cena ustalana indywidualnie
- Wentylacja mechaniczna z rekuperacją cena ustalana indywidualnie
- Pompa ciepła cena ustalana indywidualnie