ściany zewnętrzne tradycyjne murowane dwuwarstwowe – pustak ceramiczny 25cm i styropian.
strop gęstożebrowy
schody żelbetowe monolityczne
dach o konstrukcji drewnianej z pokryciem z dachówki ceramicznej, cementowej lub blachodachówki 
Prosty, tani w budowie dom na wąską działkę - o zwartej bryle i atrakcyjnej formie. Szerokość domu wynosi tylko 7,8m. 
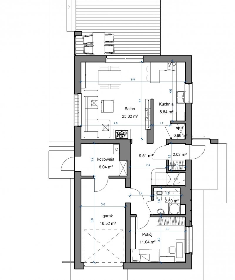
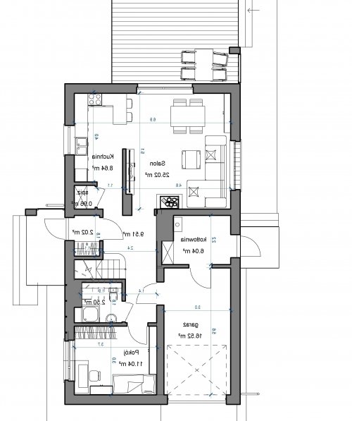
Niewielki, ale bardzo wygodny, dokładnie przemyślany dom z przestronnymi, funkcjonalnymi pomieszczeniami. Od wejścia wita wchodzących spory jasny hall ze schodami prowadzącymi na poddasze. Okno dachowe nad schodami doświetla przestrzeń.
Parter wyraźnie podzielono przestrzennie na dwie strefy – dzienną oraz odizolowaną od niej część z dodatkowym pokojem i łazienką. Dzięki temu może on pełnić rolę gabinetu, do którego przychodzą osoby z zewnątrz, nie zakłócając wypoczynku domownikom, a także pokoju gościnnego. W razie potrzeby można strefę z dodatkowym pokojem odciąć drzwiami od reszty domu.
Bardzo funkcjonalne zaplanowanie pokoju dziennego sprawia, że zmieści się w nim nawet duży stół na 12 osób na szczególne okazje. 
Centralne usytuowanie kominka umożliwia rozprowadzenie ciepła do ogrzewania domu.
Dom posiada tylko jeden komin, poprzez zgrupowanie przewodów dymowych i spalinowych, co pozwala obniżyć koszty realizacji.
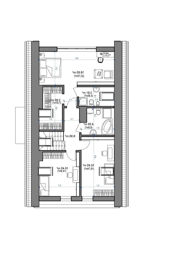
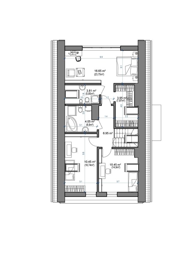
Na piętrze trzy sypialnie oraz ogólnodostępna łazienka. 
Bardzo atrakcyjna przestrzeń największej, bardzo ustawnej sypialni, otwartej przepięknym oknem na ogród. Posiada ona własną dużą wygodną garderobę z oknem i miejscem na lustro oraz łazienkę.
Duża kotłownia pozwala na zastosowanie dowolnego sposobu opału.