Dane techniczne
- Powierzchnia użytkowa 125.68 m²
- Powierzchnia zabudowy 157.75 m²
- Kubatura 557.96 m³
- Kąt nachylenia dachu 42.00°
- Powierzchnia dachu 172.21 m²
- Wysokość budynku 8.99 m
- Min. wymiary działki 23.70x24.20 m
- Garaż 33.21 m²
- Pracownia Archipelag
Technologia budowy
Fundamenty: ławy, bloczki betonowe 24 cm, ocieplenie styropian 15 cm
Ściany zewnętrzne: murowane, dwuwarstwowe, beton komórkowy firmy H+H 24 cm, ocieplenie 20 cm
Ściany wewnętrzne: murowane, ściany nośne bloczki H+H 24 cm, ścianki działowe bloczki H+H 11,5 cm ( 12 cm)
Podłoga na gruncie: płyta betonowa, ocieplenie styropian 15 cm
Strop: strop międzypiętrowy gęstożebrowy Teriva
Dach: konstrukcja drewniana, ocieplenie wełna mineralna 30 cm, dachówka płaska lub inna o podobnych parametrach
Elewacja: tynk cienkowarstwowy mineralny i okładzina z płyty HPL z naturalną okleiną drewnianą firmy Prodema
Stolarka: drewniana, PCV lub aluminiowa
Okna połaciowe: rozwiązania technologiczne firmy VELUX
Opis
Marcin II G2 to dom, który emanuje nowoczesną elegancją. Na elewacji zastosowano modne połączenie kolorów, które ubiera bryłę budynku w efektowne ramy i nadaje całości intrygujący i niepowtarzalny charakter. We wnętrzu czeka na domowników czytelny podział stref z tętniącą życiem przestrzenią parteru i zacisznym azylem nocnym na poddaszu. Atrakcyjną częścią projektu jest taras dostępny z głównej sypialni. Codzienne funkcjonowanie ułatwia mieszkańcom praktyczny zestaw szaf wnękowych.
Rzuty
PARTER
- Wiatrołap 2.97 m2
- Hol schody 14.63 m2
- Kuchnia 7.87 m2
- Spiżarnia 1.42 m2
- Pokój dzienny 27.94 m2
- Gabinet 9.17 m2
- Korytarz 2.68 m2
- Łazienka 2.26 m2
- Pom. gospodarcze 4.59 m2
- Kotłownia 10.68 m2
- Garaż 33.21 m2
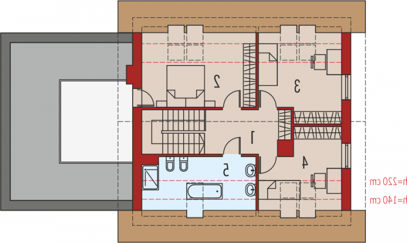
PODDASZE
- Korytarz 8.21 m2
- Sypialnia 13.88 m2
- Sypialnia 12.00 m2
- Sypialnia 9.62 m2
- Łazienka 8.44 m2
Rzuty
PARTER
- Wiatrołap 2.97 m2
- Hol schody 14.63 m2
- Kuchnia 7.87 m2
- Spiżarnia 1.42 m2
- Pokój dzienny 27.94 m2
- Gabinet 9.17 m2
- Korytarz 2.68 m2
- Łazienka 2.26 m2
- Pom. gospodarcze 4.59 m2
- Kotłownia 10.68 m2
- Garaż 33.21 m2
PODDASZE
- Korytarz 8.21 m2
- Sypialnia 13.88 m2
- Sypialnia 12.00 m2
- Sypialnia 9.62 m2
- Łazienka 8.44 m2
Dbamy o swoich Klientów, jak nikt inny!
Do każdego projektu zakupionego za pośrednictwem serwisu kreoDOM.pl otrzymasz książeczkę z rabatami na zakupy w firmach Komfort, Fachowiec, Domino Łazienki, Komandor, Witek Home i innych. Książeczka na pewno okaże się przydatna podczas urządzania Twojego wymarzonego domu!
Książeczka z rabatami do takich firm jak: Komfort, Domino Łazienki, Fachowiec, Vox, Komandor, Witek Home i innych
Gwarancja
bezpiecznych zakupów
Dodatkowe pakiety projektowe
- Kosztorys inwestorski cena ustalana indywidualnie
- Wentylacja mechaniczna z rekuperacją 700,00 zł
- Wentylacja mechaniczna + GPWC 700,00 zł
- Kolektory Słoneczne 400,00 zł
- Panele Fotowoltaiczne 400,00 zł
- Pompa Ciepła 500,00 zł
- Kominek z DGP 400,00 zł
- Biologiczna oczyszczalnia ścieków 150,00 zł
- Centralny Odkurzacz 300,00 zł
- Szambo przydomowe 200,00 zł
- Dodatkowy egzemplarz projektu 150,00 zł