Dane techniczne
- Powierzchnia użytkowa 114.39 m²
- Powierzchnia zabudowy 115.90 m²
- Kubatura 412.77 m³
- Kąt nachylenia dachu 45.00°
- Powierzchnia dachu 213.00 m²
- Wysokość budynku 9.20 m
- Min. wymiary działki 22.50x20.00 m
- Garaż 18.25 m²
- Pracownia Archipelag
Technologia budowy
Dom zaprojektowano w technologii murowej ze stropem gęstożebrowym. Dach dwuspadowy o konstrukcji drewnianej kryty dachówką cementową. Schody wewnętrzne żelbetowe. Elewacja z tynku mineralnego z okładziną klinkierową. Stolarka okienna drewniana.
Opis
Dom parterowy z poddaszem użytkowym, niepodpiwniczony, przeznaczony dla 3-5-osobowej rodziny. Charakteryzuje się prostą konstrukcją i przejrzystym układem funkcjonalnym i ciekawą elewacją. Strefa dzienna na parterze to salon z centralnie umieszczonym kominkiem, kuchnia z jadalnią, gabinet, łazienka i pomieszczenie gospodarcze połączone z garażem. Strefa nocna na poddaszu to trzy sypialnie, łazienka z pralnią i strych. Strych w ramach adaptacji można zamienić na pokój z wejściem z pomieszczenia nr 2 i zamiany go na garderobę. Projekt występuje w wersji z garażem jedno- lub dwustanowiskowym.
Rzuty
PARTER
- Wiatrołap 6.00 m2
- Hol 4.11 m2
- Kuchnia z jadalnią 14.98 m2
- Pokój dzienny 21.15 m2
- Gabinet 10.50 m2
- Łazienka 2.19 m2
- Pom. gospodarcze 5.55 m2
- Garaż 18.25 m2
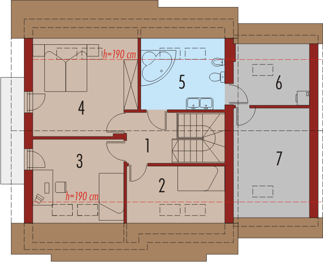
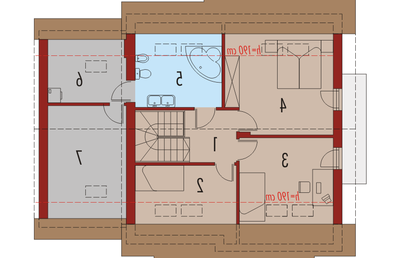
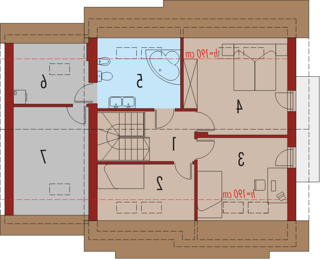
PODDASZE
- Korytarz 3.40 m2
- Pokój 7.03 m2
- Pokój 11.84 m2
- Sypialnia 16.01 m2
- Łazienka 6.78 m2
- Pralnia 4.85 m2
- Strych 10.61 m2
Rzuty
PARTER
- Wiatrołap 6.00 m2
- Hol 4.11 m2
- Kuchnia z jadalnią 14.98 m2
- Pokój dzienny 21.15 m2
- Gabinet 10.50 m2
- Łazienka 2.19 m2
- Pom. gospodarcze 5.55 m2
- Garaż 18.25 m2
PODDASZE
- Korytarz 3.40 m2
- Pokój 7.03 m2
- Pokój 11.84 m2
- Sypialnia 16.01 m2
- Łazienka 6.78 m2
- Pralnia 4.85 m2
- Strych 10.61 m2
Dbamy o swoich Klientów, jak nikt inny!
Do każdego projektu zakupionego za pośrednictwem serwisu kreoDOM.pl otrzymasz książeczkę z rabatami na zakupy w firmach Komfort, Fachowiec, Domino Łazienki, Komandor, Witek Home i innych. Książeczka na pewno okaże się przydatna podczas urządzania Twojego wymarzonego domu!
Książeczka z rabatami do takich firm jak: Komfort, Domino Łazienki, Fachowiec, Vox, Komandor, Witek Home i innych
Gwarancja
bezpiecznych zakupów
Dodatkowe pakiety projektowe
- Kosztorys inwestorski cena ustalana indywidualnie
- Wentylacja mechaniczna z rekuperacją 700,00 zł
- Wentylacja mechaniczna + GPWC 700,00 zł
- Kolektory Słoneczne 400,00 zł
- Panele Fotowoltaiczne 400,00 zł
- Pompa Ciepła 500,00 zł
- Kominek z DGP 400,00 zł
- Biologiczna oczyszczalnia ścieków 150,00 zł
- Centralny Odkurzacz 300,00 zł
- Szambo przydomowe 200,00 zł
- Dodatkowy egzemplarz projektu 150,00 zł