Dane techniczne
- Powierzchnia użytkowa 162.60 m²
- Powierzchnia zabudowy 112.60 m²
- Kubatura 806.20 m³
- Kąt nachylenia dachu 40.00°
- Wysokość budynku 7.84 m
- Min. wymiary działki 26.50x21.00 m
- Pracownia MOJ-DOM
Technologia budowy
Fundamenty: żelbetowe, wylewane
Ściany zewnętrzne: szkieletowe, ocieplone wełną mineralną
Strop: belkowy, drewniany, otwarty
Schody: drewniane
Pokrycie dachu: gont bitumiczny
Opis
Budynek jednorodzinny, parterowy, z poddaszem mieszkalnym, niepodpiwniczony, 4 pokoje, kuchnia, wiata garażowa
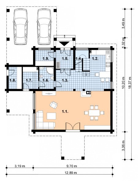
Rzuty
1. pokój dzienny44.5 m2
2. Kuchnia12.2 m2
3. Hall10.9 m2
4. Spiżarka1.8 m2
5. Wiatrołap5.2 m2
6. Łazienka5.2 m2
7. Sauna4.9 m2
8. Pom. gosp.4.4 m2
9. Garderoba4.5 m2
1. Sypialnia21.9 m2
2. Sypialnia22.3 m2
3. Sypialnia22.7 m2
4. Komunikacja11.0 m2
5. Łazienka7.2 m2
Rzuty
1. pokój dzienny44.5 m2
2. Kuchnia12.2 m2
3. Hall10.9 m2
4. Spiżarka1.8 m2
5. Wiatrołap5.2 m2
6. Łazienka5.2 m2
7. Sauna4.9 m2
8. Pom. gosp.4.4 m2
9. Garderoba4.5 m2
1. Sypialnia21.9 m2
2. Sypialnia22.3 m2
3. Sypialnia22.7 m2
4. Komunikacja11.0 m2
5. Łazienka7.2 m2
Dbamy o swoich Klientów, jak nikt inny!
Do każdego projektu zakupionego za pośrednictwem serwisu kreoDOM.pl otrzymasz książeczkę z rabatami na zakupy w firmach Komfort, Fachowiec, Domino Łazienki, Komandor, Witek Home i innych. Książeczka na pewno okaże się przydatna podczas urządzania Twojego wymarzonego domu!
Książeczka z rabatami do takich firm jak: Komfort, Domino Łazienki, Fachowiec, Vox, Komandor, Witek Home i innych
Gwarancja
bezpiecznych zakupów
Dodatkowe pakiety projektowe