Dane techniczne
- Powierzchnia użytkowa 158.30 m²
- Powierzchnia zabudowy 112.60 m²
- Kubatura 806.20 m³
- Kąt nachylenia dachu 40.00°
- Wysokość budynku 7.84 m
- Min. wymiary działki 26.50x21.00 m
- Pracownia MOJ-DOM
Technologia budowy
Fundamenty: żelbetowe, wylewane
Ściany zewnętrzne: z bali drewnianych gr. 12, 16, 20, 24, 30 cm. ocieplone od wewnątrz wełną mineralną, gr. 52 cm bez ocieplenia
Strop: belkowy, drewniany, zamknięty
Schody: drewniane
Pokrycie dachu: gont bitumiczny
Opis
Budynek jednorodzinny, parterowy, z poddaszem mieszkalnym, niepodpiwniczony, 4 pokoje, kuchnia, wiata garażowa
Rzuty
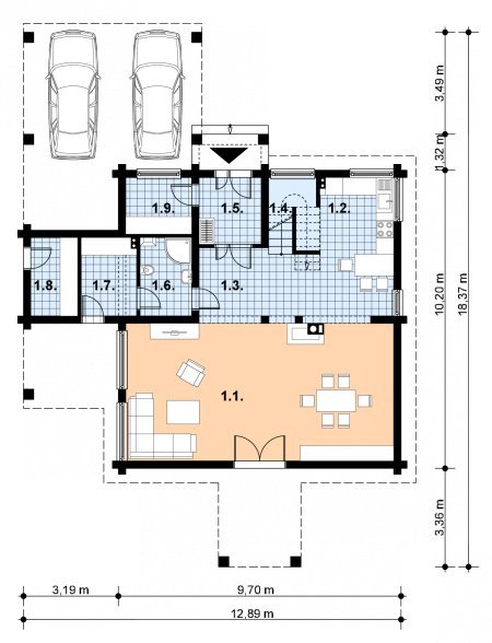
1. pokój dzienny43.1 m2
2. Kuchnia11.7 m2
3. Hall10.9 m2
4. Spiżarka1.7 m2
5. Wiatrołap5.0 m2
6. Łazienka5.0 m2
7. Sauna4.7 m2
8. Pom. gosp.4.0 m2
9. Garderoba4.4 m2
1. Sypialnia21.2 m2
2. Sypialnia21.7 m2
3. Sypialnia21.9 m2
4. Komunikacja10.9 m2
5. Łazienka7.0 m2
Rzuty
1. pokój dzienny43.1 m2
2. Kuchnia11.7 m2
3. Hall10.9 m2
4. Spiżarka1.7 m2
5. Wiatrołap5.0 m2
6. Łazienka5.0 m2
7. Sauna4.7 m2
8. Pom. gosp.4.0 m2
9. Garderoba4.4 m2
1. Sypialnia21.2 m2
2. Sypialnia21.7 m2
3. Sypialnia21.9 m2
4. Komunikacja10.9 m2
5. Łazienka7.0 m2
Dbamy o swoich Klientów, jak nikt inny!
Do każdego projektu zakupionego za pośrednictwem serwisu kreoDOM.pl otrzymasz książeczkę z rabatami na zakupy w firmach Komfort, Fachowiec, Domino Łazienki, Komandor, Witek Home i innych. Książeczka na pewno okaże się przydatna podczas urządzania Twojego wymarzonego domu!
Książeczka z rabatami do takich firm jak: Komfort, Domino Łazienki, Fachowiec, Vox, Komandor, Witek Home i innych
Gwarancja
bezpiecznych zakupów
Dodatkowe pakiety projektowe