Dane techniczne
- Powierzchnia użytkowa 156.60 m²
- Powierzchnia zabudowy 104.10 m²
- Kubatura 679.90 m³
- Kąt nachylenia dachu 40.00°
- Wysokość budynku 7.09 m
- Min. wymiary działki 21.00x20.00 m
- Pracownia MOJ-DOM
Technologia budowy
Projekt dostępny również w technologii bala drewnianego.
Fundamenty: żelbetowe, wylewane
Ściany zewnętrzne: Fundamenty: żelbetowe, wylewane
Ściany zewnętrzne: szkieletowe ocieplone wełną mineralną
Strop: belkowy, drewniany, otwarty
Schody: drewniane
Pokrycie dachu: dachówka betonowa.
Opis
Budynek jednorodzinny, z poddaszem mieszkalnym, niepodpiwniczony, 4 pokoje, kuchnia, jadalnia
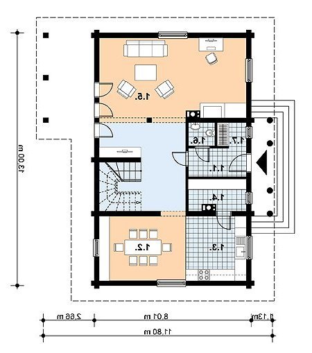
Rzuty
1. wiatrołap4.6 m2
2. jadalnia17.5 m2
3. kuchnia8.9 m2
4. pom. gospodarcze4.8 m2
5. pokój dzienny50.7 m2
6. wc1.8 m2
7. pom. gospodarcze1.9 m2
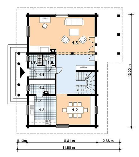
1. hall12.0 m2
2. sypialnia26.5 m2
3. sypialnia13.8 m2
4. sypialnia20.4 m2
5. garderoba7.0 m2
6. łazienka7.3 m2
Rzuty
1. wiatrołap4.6 m2
2. jadalnia17.5 m2
3. kuchnia8.9 m2
4. pom. gospodarcze4.8 m2
5. pokój dzienny50.7 m2
6. wc1.8 m2
7. pom. gospodarcze1.9 m2
1. hall12.0 m2
2. sypialnia26.5 m2
3. sypialnia13.8 m2
4. sypialnia20.4 m2
5. garderoba7.0 m2
6. łazienka7.3 m2
Dbamy o swoich Klientów, jak nikt inny!
Do każdego projektu zakupionego za pośrednictwem serwisu kreoDOM.pl otrzymasz książeczkę z rabatami na zakupy w firmach Komfort, Fachowiec, Domino Łazienki, Komandor, Witek Home i innych. Książeczka na pewno okaże się przydatna podczas urządzania Twojego wymarzonego domu!
Książeczka z rabatami do takich firm jak: Komfort, Domino Łazienki, Fachowiec, Vox, Komandor, Witek Home i innych
Gwarancja
bezpiecznych zakupów
Dodatkowe pakiety projektowe