Dane techniczne
- Powierzchnia użytkowa 151.00 m²
- Powierzchnia zabudowy 104.10 m²
- Kubatura 679.90 m³
- Kąt nachylenia dachu 40.00°
- Wysokość budynku 7.09 m
- Min. wymiary działki 21.00x20.00 m
- Pracownia MOJ-DOM
Technologia budowy
Ściany:
Projekt dostępny również w technologii szkieletu drewnianego.
Fundamenty: żelbetowe, wylewane
Ściany zewnętrzne: z bali drewnianych gr. 12, 16, 20, 24 cm. ocieplone od wewnątrz wełną mineralną lub 52 cm bez ocieplenia
Stropy:
Belkowy drewniany, otwarty
Wykończenie:
Schody: drewniane
Dach
Pokrycie dachu: dachówka betonowa.
Opis
Budynek jednorodzinny, z poddaszem mieszkalnym, niepodpiwniczony, 4 pokoje, kuchnia, jadalnia
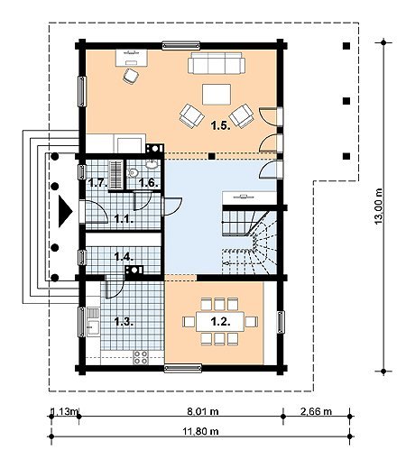
Rzuty
1. wiatrołap4.5 m2
2. jadalnia16.7 m2
3. kuchnia8.3 m2
4. pom. gospodarcze4.7 m2
5. pokój dzienny48.9 m2
6. wc1.8 m2
7. pom. gospodarcze1.8 m2
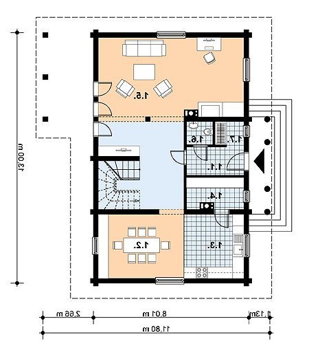
1. hall10.8 m2
2. sypialnia25.0 m2
3. sypialnia13.6 m2
4. sypialnia19.5 m2
5. garderoba6.5 m2
6. łazienka7.3 m2
Rzuty
1. wiatrołap4.5 m2
2. jadalnia16.7 m2
3. kuchnia8.3 m2
4. pom. gospodarcze4.7 m2
5. pokój dzienny48.9 m2
6. wc1.8 m2
7. pom. gospodarcze1.8 m2
1. hall10.8 m2
2. sypialnia25.0 m2
3. sypialnia13.6 m2
4. sypialnia19.5 m2
5. garderoba6.5 m2
6. łazienka7.3 m2
Dbamy o swoich Klientów, jak nikt inny!
Do każdego projektu zakupionego za pośrednictwem serwisu kreoDOM.pl otrzymasz książeczkę z rabatami na zakupy w firmach Komfort, Fachowiec, Domino Łazienki, Komandor, Witek Home i innych. Książeczka na pewno okaże się przydatna podczas urządzania Twojego wymarzonego domu!
Książeczka z rabatami do takich firm jak: Komfort, Domino Łazienki, Fachowiec, Vox, Komandor, Witek Home i innych
Gwarancja
bezpiecznych zakupów
Dodatkowe pakiety projektowe