Dane techniczne
- Powierzchnia użytkowa 103.30 m²
- Powierzchnia zabudowy 97.00 m²
- Kubatura 527.50 m³
- Kąt nachylenia dachu 40.00°
- Wysokość budynku 6.68 m
- Min. wymiary działki 22.50x16.00 m
- Garaż 17.40 m²
- Pracownia MOJ-DOM
Technologia budowy
Ściany:
Projekt dostępny również w technologii szkieletu drewnianego.
Fundamenty: żelbetowe, wylewane
Ściany zewnętrzne: z bali drewnianych gr. 12, 16, 20, 24 cm. ocieplone od wewnątrz wełną mineralną lub 30 cm bez ocieplenia
Stropy:
Belkowy, drewniany, otwarty
Wykończenie:
Schody: drewniane
Dach
Pokrycie dachu: gont bitumiczny.
Opis
Budynek jednorodzinny, parterowy, z poddaszem mieszkalnym, niepodpiwniczony, 5 pokoi, kuchnia z jadalnią, garaż
Rzuty
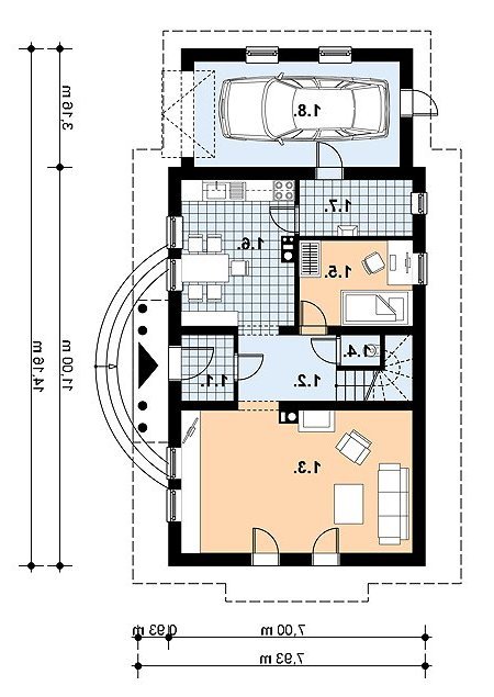
1. wiatrołap2.9 m2
2. hall7.1 m2
3. pokój dzienny26.5 m2
4. wc1.0 m2
5. sypialnia8.4 m2
6. kuchnia z jadalnią13.3 m2
7. kotłownia4.6 m2
8. garaż17.4 m2
1. hall10.2 m2
2. łazienka8.9 m2
3. sypialnia12.9 m2
4. sypialnia13.0 m2
5. sypialnia13.1 m2
Rzuty
1. wiatrołap2.9 m2
2. hall7.1 m2
3. pokój dzienny26.5 m2
4. wc1.0 m2
5. sypialnia8.4 m2
6. kuchnia z jadalnią13.3 m2
7. kotłownia4.6 m2
8. garaż17.4 m2
1. hall10.2 m2
2. łazienka8.9 m2
3. sypialnia12.9 m2
4. sypialnia13.0 m2
5. sypialnia13.1 m2
Dbamy o swoich Klientów, jak nikt inny!
Do każdego projektu zakupionego za pośrednictwem serwisu kreoDOM.pl otrzymasz książeczkę z rabatami na zakupy w firmach Komfort, Fachowiec, Domino Łazienki, Komandor, Witek Home i innych. Książeczka na pewno okaże się przydatna podczas urządzania Twojego wymarzonego domu!
Książeczka z rabatami do takich firm jak: Komfort, Domino Łazienki, Fachowiec, Vox, Komandor, Witek Home i innych
Gwarancja
bezpiecznych zakupów
Dodatkowe pakiety projektowe