Dane techniczne
- Powierzchnia użytkowa 103.10 m²
- Powierzchnia zabudowy 107.70 m²
- Kubatura 659.90 m³
- Kąt nachylenia dachu 40.00°
- Wysokość budynku 6.68 m
- Min. wymiary działki 23.00x16.50 m
- Garaż 20.90 m²
- Pracownia MOJ-DOM
Technologia budowy
Ściany:
Projekt dostępny również w technologii szkieletu drewnianego.
Fundamenty: żelbetowe, wylewane
Ściany zewnętrzne: z bali drewnianych gr. 12, 16, 20, 24 cm. ocieplone od wewnątrz wełną mineralną lub 52 cm bez ocieplenia
Ściany piwnic: betonowe wylewane lub z bloczków betnowych
Stropy:
Belkowy, drewniany, otwarty
Wykończenie:
Schody: drewniane
Dach
Pokrycie dachu: gont bitumiczny.
Opis
Budynek jednorodzinny, parterowy, z poddaszem mieszkalnym, podpiwniczony, 5 pokoi, kuchnia, garaż
Rzuty
1. wiatrołap2.9 m2
2. hall9.3 m2
3. pokój dzienny26.3 m2
4. łazienka2.9 m2
5. sypialnia8.2 m2
6. kuchnia10.9 m2
7. spiżarnia1.4 m2
1. hall6.2 m2
2. łazienka4.1 m2
3. sypialnia11.6 m2
4. pom. gospodarcze3.4 m2
5. sypialnia9.0 m2
6. sypialnia24.6 m2
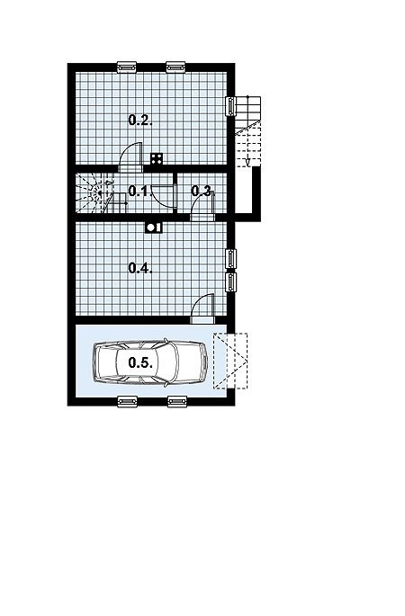
1. korytarz7.5 m2
2. pom.gospodarcze25.7 m2
3. pom. gospodarcze3.9 m2
4. kotłownia25.5 m2
5. garaż20.9 m2
Rzuty
1. wiatrołap2.9 m2
2. hall9.3 m2
3. pokój dzienny26.3 m2
4. łazienka2.9 m2
5. sypialnia8.2 m2
6. kuchnia10.9 m2
7. spiżarnia1.4 m2
1. hall6.2 m2
2. łazienka4.1 m2
3. sypialnia11.6 m2
4. pom. gospodarcze3.4 m2
5. sypialnia9.0 m2
6. sypialnia24.6 m2
1. korytarz7.5 m2
2. pom.gospodarcze25.7 m2
3. pom. gospodarcze3.9 m2
4. kotłownia25.5 m2
5. garaż20.9 m2
Dbamy o swoich Klientów, jak nikt inny!
Do każdego projektu zakupionego za pośrednictwem serwisu kreoDOM.pl otrzymasz książeczkę z rabatami na zakupy w firmach Komfort, Fachowiec, Domino Łazienki, Komandor, Witek Home i innych. Książeczka na pewno okaże się przydatna podczas urządzania Twojego wymarzonego domu!
Książeczka z rabatami do takich firm jak: Komfort, Domino Łazienki, Fachowiec, Vox, Komandor, Witek Home i innych
Gwarancja
bezpiecznych zakupów
Dodatkowe pakiety projektowe