Dane techniczne
- Powierzchnia użytkowa 110.00 m²
- Powierzchnia zabudowy 81.70 m²
- Kubatura 606.10 m³
- Kąt nachylenia dachu 40.00°
- Wysokość budynku 7.10 m
- Min. wymiary działki 21.00x18.50 m
- Garaż 25.50 m²
- Pracownia MOJ-DOM
Technologia budowy
Fundamenty: żelbetowe, wylewane
Ściany zewnętrzne: z bali drewnianych gr. 12, 16, 20, 24, 30 cm. ocieplone od wewnątrz wełną mineralną, gr. 52 cm bez ocieplenia
Strop: belkowy, drewniany, zamknięty
Schody: drewniane
Pokrycie dachu: dachówka betonowa
Opis
Budynek jednorodzinny, parterowy, z poddaszem mieszkalnym, podpiwniczony, 5 pokoi, kuchnia, garaż
Rzuty
1. Garaż25.5 m2
2. Komunikacja4.8 m2
1. Wiatrołap2.8 m2
2. Łazienka5.7 m2
3. Garderoba2.8 m2
4. Sypialnia11.0 m2
5. Pokoój dzienny23.8 m2
6. Hall10.1 m2
7. Kuchnia9.7 m2
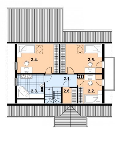
1. Hall7.1 m2
2. Sypialnia10.0 m2
3. Łazienka8.3 m2
4. Sypialnia17.6 m2
5. Sypialnia17.5 m2
6. Pomieszczenie pgosp.3.4 m2
Rzuty
1. Garaż25.5 m2
2. Komunikacja4.8 m2
1. Wiatrołap2.8 m2
2. Łazienka5.7 m2
3. Garderoba2.8 m2
4. Sypialnia11.0 m2
5. Pokoój dzienny23.8 m2
6. Hall10.1 m2
7. Kuchnia9.7 m2
1. Hall7.1 m2
2. Sypialnia10.0 m2
3. Łazienka8.3 m2
4. Sypialnia17.6 m2
5. Sypialnia17.5 m2
6. Pomieszczenie pgosp.3.4 m2
Dbamy o swoich Klientów, jak nikt inny!
Do każdego projektu zakupionego za pośrednictwem serwisu kreoDOM.pl otrzymasz książeczkę z rabatami na zakupy w firmach Komfort, Fachowiec, Domino Łazienki, Komandor, Witek Home i innych. Książeczka na pewno okaże się przydatna podczas urządzania Twojego wymarzonego domu!
Książeczka z rabatami do takich firm jak: Komfort, Domino Łazienki, Fachowiec, Vox, Komandor, Witek Home i innych
Gwarancja
bezpiecznych zakupów
Dodatkowe pakiety projektowe