Dane techniczne
- Powierzchnia użytkowa 145.30 m²
- Powierzchnia zabudowy 109.20 m²
- Kubatura 597.60 m³
- Kąt nachylenia dachu 40.00°
- Wysokość budynku 6.87 m
- Min. wymiary działki 21.00x19.00 m
- Pracownia MOJ-DOM
Technologia budowy
Ściany:
Projekt dostępny również w technologii szkieletu drewnianego.
Fundamenty: żelbetowe, wylewane
Ściany zewnętrzne: z bali drewnianych gr. 12, 16, 20, 24 cm. ocieplone od wewnątrz wełną mineralną lub 52 cm bez ocieplenia
Stropy:
belkowy, drewniany, otwarty
Wykończenie:
Schody: drewniane
Dach
Pokrycie dachu: gont bitumiczny
Opis
Budynek jednorodzinny, parterowy, z poddaszem mieszkalnym, niepodpiwniczony, 5 pokoi, kuchnia z jadalnią
Rzuty
1. hall14.9 m2
2. sypialnia15.4 m2
3. sypialnia19.8 m2
4. garderoba5.2 m2
5. sypialnia23.6 m2
6. łazienka5.9 m2
7. garderoba6.0 m2
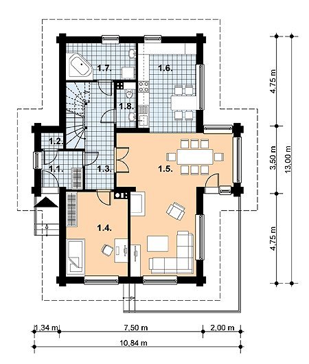
1. wiatrołap4.6 m2
2. pom. gospodarcze1.0 m2
3. hall11.6 m2
4. sypialnia14.6 m2
5. pok. dzienny z jadalnią35.9 m2
6. kuchnia13.9 m2
7. łazienka7.0 m2
8. wc2.1 m2
Rzuty
1. hall14.9 m2
2. sypialnia15.4 m2
3. sypialnia19.8 m2
4. garderoba5.2 m2
5. sypialnia23.6 m2
6. łazienka5.9 m2
7. garderoba6.0 m2
1. wiatrołap4.6 m2
2. pom. gospodarcze1.0 m2
3. hall11.6 m2
4. sypialnia14.6 m2
5. pok. dzienny z jadalnią35.9 m2
6. kuchnia13.9 m2
7. łazienka7.0 m2
8. wc2.1 m2
Dbamy o swoich Klientów, jak nikt inny!
Do każdego projektu zakupionego za pośrednictwem serwisu kreoDOM.pl otrzymasz książeczkę z rabatami na zakupy w firmach Komfort, Fachowiec, Domino Łazienki, Komandor, Witek Home i innych. Książeczka na pewno okaże się przydatna podczas urządzania Twojego wymarzonego domu!
Książeczka z rabatami do takich firm jak: Komfort, Domino Łazienki, Fachowiec, Vox, Komandor, Witek Home i innych
Gwarancja
bezpiecznych zakupów
Dodatkowe pakiety projektowe