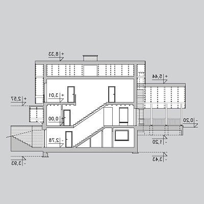
Dane techniczne
- Powierzchnia użytkowa 151.58 m²
- Powierzchnia zabudowy 146.92 m²
- Kubatura 740.00 m³
- Kąt nachylenia dachu 42.00°
- Powierzchnia dachu 283.00 m²
- Wysokość budynku 8.93 m
- Min. wymiary działki 26.80x18.73 m
- Pracownia LK & Projekt
Technologia budowy
- Ściany wewnętrzne: konstrukcyjne z cegły klinkierowej, działowe szkieletowe, na podkonstrukcji stalowej, z wypełnieniem z wełny mineralnej 'Rockton' firmy Rockwool o gr. 10cm, z obustronną okładziną z płyt gips.-karton
- Okna i drzwi balkonowe: drewniane
- Sposób ogrzewania: kocioł na gaz lub paliwo stałe
- Strop: żelbetowy
- Pokrycie dachu: dachówką 'Decra - Stratos' firmy Icopal
- Elewacje: bale z drewna świerkowego, cokół obłożony cegłą klinkierową
- Ściany zewnętrzne: bale z drewna świerkowego o przekroju prostokątnym + konstrukcja szkieletowa z wypełnieniem z wełny mineralnej 'Rockton' firmy Rockwool o gr. 20cm z wewnętrzną okładziną z płyt gips.-karton
- Konstrukcja dachu: drewniana, krokwiowo-jętkowa, ocieplona wełną mineralną 'Megarock' firmy Rockwool o łącznej grubości 30cm
- Wentylacja: grawitacyjna
- Ławy fundamentowe: żelbetowe
- Ściany fundamentowe: zalewowe pustaki betonowe o gr. 30 cm ocieplone styropianem ekstrudowanym o gr.15 cm
- Koszt orientacyjny (bez Vat): 542 282.00 zł.
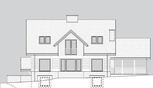
Opis
Budynek jednorodzinny, parterowy, z poddaszem mieszkalnym.
Rzuty
PIWNICA
Piwnica
1. Komunikacja 14.79m
2. Kotłownia 17.85m
3. Pokój rekreacyjny 14.42m
4. Pralnia 9.78m
5. Pomieszczenie gospodarcze 7.36m
6. Kuchnia 11.15m
7. Pomieszczenie gospodarcze 2 14.05m
8. Schowek 1.34m
PARTER
Parter
1. Sień 3.42m
2. Garderoba 3.09m
3. Hall 10.34m
4. Spiżarka 3.57m
5. Kuchnia 10.72m
6. Pokój dzienny z jadalnią 34.64m
7. Gabinet 13.07m
8. Schowek 1.82m
9. Łazienka 5.91m
PODDASZE
Poddasze
1. Hall (9.28) 9.28m
2. Sypialnia (20.87) 19.13m
3. Łazienka (5.32) 2.62m
4. Garderoba (4.26) 4.26m
5. Sypialnia 2 (9.95) 7.24m
6. Garderoba 2 (4.47) 1.69m
7. Schowek (4.47) 1.69m
8. Łazienka 2 (10.89) 7.19m
9. Sypialnia 3 (16.34) 11.90m
Rzuty
PIWNICA
Piwnica
1. Komunikacja 14.79m
2. Kotłownia 17.85m
3. Pokój rekreacyjny 14.42m
4. Pralnia 9.78m
5. Pomieszczenie gospodarcze 7.36m
6. Kuchnia 11.15m
7. Pomieszczenie gospodarcze 2 14.05m
8. Schowek 1.34m
PARTER
Parter
1. Sień 3.42m
2. Garderoba 3.09m
3. Hall 10.34m
4. Spiżarka 3.57m
5. Kuchnia 10.72m
6. Pokój dzienny z jadalnią 34.64m
7. Gabinet 13.07m
8. Schowek 1.82m
9. Łazienka 5.91m
PODDASZE
Poddasze
1. Hall (9.28) 9.28m
2. Sypialnia (20.87) 19.13m
3. Łazienka (5.32) 2.62m
4. Garderoba (4.26) 4.26m
5. Sypialnia 2 (9.95) 7.24m
6. Garderoba 2 (4.47) 1.69m
7. Schowek (4.47) 1.69m
8. Łazienka 2 (10.89) 7.19m
9. Sypialnia 3 (16.34) 11.90m
Dbamy o swoich Klientów, jak nikt inny!
Do każdego projektu zakupionego za pośrednictwem serwisu kreoDOM.pl otrzymasz książeczkę z rabatami na zakupy w firmach Komfort, Fachowiec, Domino Łazienki, Komandor, Witek Home i innych. Książeczka na pewno okaże się przydatna podczas urządzania Twojego wymarzonego domu!
Książeczka z rabatami do takich firm jak: Komfort, Domino Łazienki, Fachowiec, Vox, Komandor, Witek Home i innych
Gwarancja
bezpiecznych zakupów
Dodatkowe pakiety projektowe
- Kosztorys inwestorski cena ustalana indywidualnie
- Kolektory słoneczne cena ustalana indywidualnie
- Kominek z DGP cena ustalana indywidualnie
- Wentylacja mechaniczna z rekuperacją cena ustalana indywidualnie
- Pompa ciepła cena ustalana indywidualnie