Dane techniczne
- Powierzchnia użytkowa 250.89 m²
- Powierzchnia zabudowy 278.00 m²
- Kubatura 958.00 m³
- Kąt nachylenia dachu 2.00°
- Powierzchnia dachu 220.00 m²
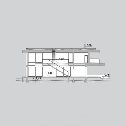
- Wysokość budynku 8.20 m
- Min. wymiary działki 27.00x28.60 m
- Garaż 49.02 m²
- Pracownia LK & Projekt
Technologia budowy
- Sposób ogrzewania: pompa ciepła
- Okna i drzwi balkonowe: aluminiowe
- Strop: żelbetowy, monolityczny
- Konstrukcja dachu: stopodach
- Pokrycie dachu: papą bitumiczną
- Elewacje: okładzina drewniana, trawertyn jasnym, tynk silikonowy, cokól i taras kamień naturalny, cegła klinkierowa
- Ściany wewnętrzne: pustaki ceramiczne Porotherm firmy Wienerberger gr. 25cm, 11,5 cm. STROPY: żelbetowe, monolityczne.
- Ściany fundamentowe: betonowe + styropian ekstrudowany o gr. 20 cm
- Ściany zewnętrzne: pustak ceramiczny Porotherm 44 o gr.44cm firmy Wienerberger, docieplone styropianem o gr. 6cm
- Ławy fundamentowe: żelbetowe
- Wentylacja: mechaniczna z rekuperacją
Opis
Projekt nowoczesnego domu piętrowego z garażem.
Rzuty
PARTER
- Sień 10,39 m2
- Spiżarka 6,60 m2
- Kuchnia 18,51 m2
- Jadalnia 25,20 m2
- Hall 23,06 m2
- Salon 30,68 m2
- Pokój 14,23 m2
- Łazienka 6,22 m2
- Pomieszczenie gospodarcze 14,52 m2
- Warsztat 4,73 m2
- Garaż 49,02 m2
PIĘTRO
- Korytarz 27,10 m2
- Pokój 15,26 m2
- Pokój 2 14,16 m2
- Łazienka 16,77 m2
- Sypialnia 33,87 m2
- Pralnia 8,84 m2
Rzuty
PARTER
- Sień 10,39 m2
- Spiżarka 6,60 m2
- Kuchnia 18,51 m2
- Jadalnia 25,20 m2
- Hall 23,06 m2
- Salon 30,68 m2
- Pokój 14,23 m2
- Łazienka 6,22 m2
- Pomieszczenie gospodarcze 14,52 m2
- Warsztat 4,73 m2
- Garaż 49,02 m2
PIĘTRO
- Korytarz 27,10 m2
- Pokój 15,26 m2
- Pokój 2 14,16 m2
- Łazienka 16,77 m2
- Sypialnia 33,87 m2
- Pralnia 8,84 m2
Dbamy o swoich Klientów, jak nikt inny!
Do każdego projektu zakupionego za pośrednictwem serwisu kreoDOM.pl otrzymasz książeczkę z rabatami na zakupy w firmach Komfort, Fachowiec, Domino Łazienki, Komandor, Witek Home i innych. Książeczka na pewno okaże się przydatna podczas urządzania Twojego wymarzonego domu!
Książeczka z rabatami do takich firm jak: Komfort, Domino Łazienki, Fachowiec, Vox, Komandor, Witek Home i innych
Gwarancja
bezpiecznych zakupów
Dodatkowe pakiety projektowe
- Kosztorys inwestorski cena ustalana indywidualnie
- Kolektory słoneczne cena ustalana indywidualnie
- Kominek z DGP cena ustalana indywidualnie
- Wentylacja mechaniczna z rekuperacją cena ustalana indywidualnie
- Pompa ciepła cena ustalana indywidualnie