Dane techniczne
- Powierzchnia użytkowa 256.01 m²
- Powierzchnia zabudowy 180.53 m²
- Kubatura 845.00 m³
- Kąt nachylenia dachu 25.00°
- Powierzchnia dachu 258.18 m²
- Wysokość budynku 9.50 m
- Min. wymiary działki 30.75x21.50 m
- Garaż 42.09 m²
- Pracownia LK & Projekt
Technologia budowy
- Wentylacja: grawitacyjna
- Elewacje: wykończone tynkiem silikonowym, kamieniem naturalnym i drewnem elewacyjnym
- Okna i drzwi balkonowe: aluminiowe
- Sposób ogrzewania: kocioł na gaz
- Strop: żelbetowy
- Konstrukcja dachu: drewniana ocieplona wełną mineralną o gr. 30 cm, konstrukcja stropodachu żelbetowa według systemu Bauder
- Pokrycie dachu: blacha tytan-cynk, izolacja przeciwwodna, ocieplenie, żwir
- Ściany zewnętrzne: z pustaków ceramicznych 'Porotherm 30 Profi' o gr.30 cm firmy Wienerberger,ocieplone styropianem 'Gold fasada' o gr.20 cm firmy Termo Organika
- Ściany wewnętrzne: z pustaków ceramicznych 'Porothermi' gr. 25, 11.5 cm firmy Wienerberger
- Ściany fundamentowe: z bloczków betonowych o gr.24 cm, ocieplone styropianem 'Gold fundament' o gr.20 cm firmy Termo Organika
- Ławy fundamentowe: żelbetowe
- Koszt orientacyjny (bez Vat): 679 494.00 zł.
Opis
Nowoczesny, piętrowy dom jednorodzinny, z piwnicą.
Rzuty
PIWNCA
- Powierzchnia użytkowa 60,80 m2
- Pralnia z kotłownią 10,62 m2
- Pomieszczenie gospodarcze 8,09 m2
- Garaż 42,09 m2
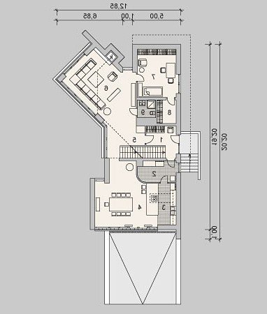
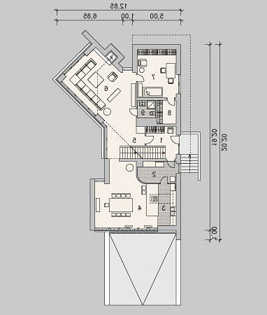
PARTER
- Powierzchnia użytkowa 134,36 m2
- Hall 9,04 m2
- Spiżarka 8,49 m2
- Kuchnia 13,11 m2
- Jadalnia 29,76 m2
- Korytarz 8,04 m2
- Pokój dzienny 39,56 m2
- Sypialnia 20,00 m2
- Łazienka 6,36 m2
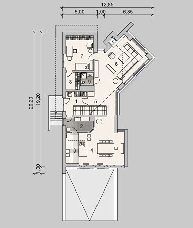
PIĘTRO
- Powierzchnia użytkowa 121,65 m2
- Korytarz 16,96 m2
- Łazienka 9,05 m2
- Sypialnia 27,84 m2
- Garderoba 4,42 m2
- Antresola 26,54 m2
- Sypialnia 2 15,36 m2
- Garderoba 2 7,47 m2
- Sypialnia 3 14,02 m2
Rzuty
PIWNCA
- Powierzchnia użytkowa 60,80 m2
- Pralnia z kotłownią 10,62 m2
- Pomieszczenie gospodarcze 8,09 m2
- Garaż 42,09 m2
PARTER
- Powierzchnia użytkowa 134,36 m2
- Hall 9,04 m2
- Spiżarka 8,49 m2
- Kuchnia 13,11 m2
- Jadalnia 29,76 m2
- Korytarz 8,04 m2
- Pokój dzienny 39,56 m2
- Sypialnia 20,00 m2
- Łazienka 6,36 m2
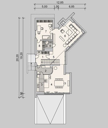
PIĘTRO
- Powierzchnia użytkowa 121,65 m2
- Korytarz 16,96 m2
- Łazienka 9,05 m2
- Sypialnia 27,84 m2
- Garderoba 4,42 m2
- Antresola 26,54 m2
- Sypialnia 2 15,36 m2
- Garderoba 2 7,47 m2
- Sypialnia 3 14,02 m2
Dbamy o swoich Klientów, jak nikt inny!
Do każdego projektu zakupionego za pośrednictwem serwisu kreoDOM.pl otrzymasz książeczkę z rabatami na zakupy w firmach Komfort, Fachowiec, Domino Łazienki, Komandor, Witek Home i innych. Książeczka na pewno okaże się przydatna podczas urządzania Twojego wymarzonego domu!
Książeczka z rabatami do takich firm jak: Komfort, Domino Łazienki, Fachowiec, Vox, Komandor, Witek Home i innych
Gwarancja
bezpiecznych zakupów
Dodatkowe pakiety projektowe
- Kosztorys inwestorski cena ustalana indywidualnie
- Kolektory słoneczne cena ustalana indywidualnie
- Kominek z DGP cena ustalana indywidualnie
- Wentylacja mechaniczna z rekuperacją cena ustalana indywidualnie
- Pompa ciepła cena ustalana indywidualnie