Dane techniczne
- Powierzchnia użytkowa 255.33 m²
- Powierzchnia zabudowy 200.50 m²
- Kubatura 934.00 m³
- Kąt nachylenia dachu 3.00°
- Powierzchnia dachu 274.35 m²
- Wysokość budynku 9.07 m
- Min. wymiary działki 21.75x36.30 m
- Garaż 42.60 m²
- Pracownia LK & Projekt
Technologia budowy
- Okna i drzwi balkonowe: aluminiowe
- Wentylacja: mechaniczna z rekuperacją
- Sposób ogrzewania: pompa ciepła
- Elewacje: wykończone tynkiem silikonowym, płytki elewacyjne Terca Stratus firmy Wienerberger, cegła klinkierowa Terca Stratus firmy Wienerberger
- Strop: żelbetowy
- Konstrukcja dachu: stropodach żelbetowy
- Pokrycie dachu: żwir, izolacja przeciwwodna, ocieplenie
- Ściany zewnętrzne: z pustaków ceramicznych 'Porotherm 44 Si' firmy Wienerberger
- Ściany wewnętrzne: z pustaków ceramicznych Porotherm gr. 25, 11.5 cm firmy Wienerberger
- Ławy fundamentowe: żelbetowe
- Ściany fundamentowe: z pustaków szalunkowych o gr.30 cm, ocieplone styropianem o gr.15 cm
- Koszt orientacyjny (bez Vat): 625 626.00 zł.
Opis
Nowoczesny, piętrowy dom jednorodzinny,z dwustaniskowym garażem.
Rzuty
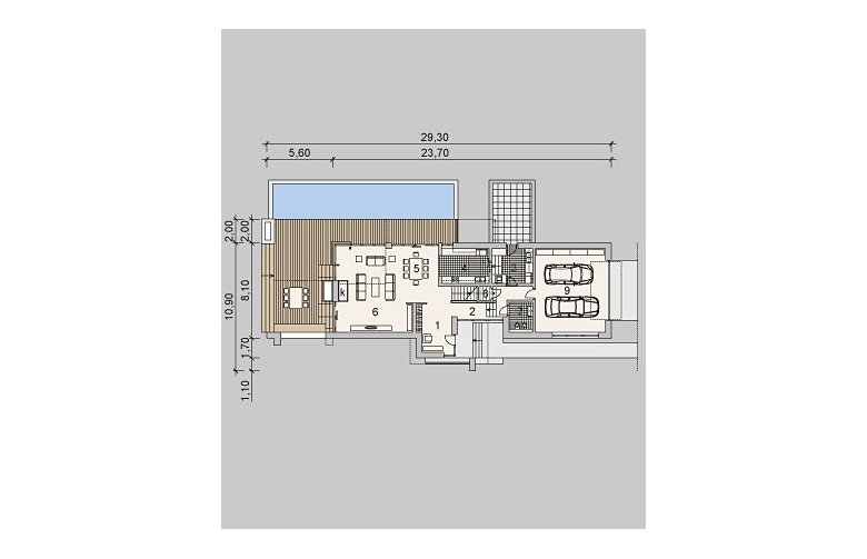
PARTER
Parter
1. Sień 11.98m
2. Hall 11.09m
3. Spiżarka 9.04m
4. Kuchnia 12.30m
5. Jadalnia 15.82m
6. Pokój dzienny 42.29m
7. WC 5.08m
8. Schowek 1.26m
9. Garaż 42.60m
PIĘTRO
Piętro
1. Hall 15.77m
2. Łazienka 10.47m
3. Sypialnia 26.02m
4. Garderoba 5.08m
5. Pralnia 7.28m
6. Łazienka 2 12.00m
7. Sypialnia 2 25.61m
8. Sypialnia 3
22.72m
9. Sypialnia 4 21.52m
Rzuty
PARTER
Parter
1. Sień 11.98m
2. Hall 11.09m
3. Spiżarka 9.04m
4. Kuchnia 12.30m
5. Jadalnia 15.82m
6. Pokój dzienny 42.29m
7. WC 5.08m
8. Schowek 1.26m
9. Garaż 42.60m
PIĘTRO
Piętro
1. Hall 15.77m
2. Łazienka 10.47m
3. Sypialnia 26.02m
4. Garderoba 5.08m
5. Pralnia 7.28m
6. Łazienka 2 12.00m
7. Sypialnia 2 25.61m
8. Sypialnia 3
22.72m
9. Sypialnia 4 21.52m
Dbamy o swoich Klientów, jak nikt inny!
Do każdego projektu zakupionego za pośrednictwem serwisu kreoDOM.pl otrzymasz książeczkę z rabatami na zakupy w firmach Komfort, Fachowiec, Domino Łazienki, Komandor, Witek Home i innych. Książeczka na pewno okaże się przydatna podczas urządzania Twojego wymarzonego domu!
Książeczka z rabatami do takich firm jak: Komfort, Domino Łazienki, Fachowiec, Vox, Komandor, Witek Home i innych
Gwarancja
bezpiecznych zakupów
Dodatkowe pakiety projektowe
- Kosztorys inwestorski cena ustalana indywidualnie
- Kolektory słoneczne cena ustalana indywidualnie
- Kominek z DGP cena ustalana indywidualnie
- Wentylacja mechaniczna z rekuperacją cena ustalana indywidualnie
- Pompa ciepła cena ustalana indywidualnie