PROPOZYCJE MATRIAŁOWE ZASTOSOWANE W PROJEKCIE (TECHNOLOGIA BUDOWY)
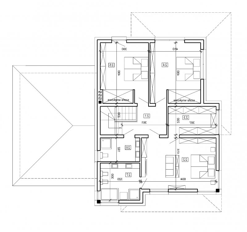
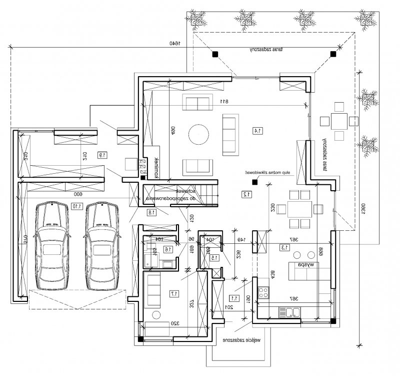
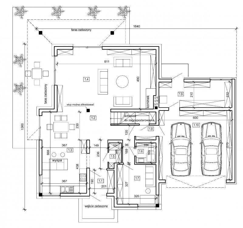
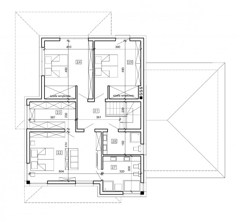
dom o architekturze współczesnej do realizacji na działkach podmiejskich umożliwiających postawienie domu piętrowego. układ domu jest prosty i przejrzysty, na parterze część dzienna - kuchnia z możliwością montażu tzw"wyspy" , duży salon, duże pomieszczenie gospodarcze z wyjściem na ogród, wygodny garaż na 2 samochody. na piętrze umieszczono pomieszczenia charakterystyczne dla strefy nocnej czyli : sypialnie oraz łazienki i garderoby.
podobne projekty wykonujemy na indywidualne zamówienie. istnieje możliwość znacznego powiększenia lub nieznacznego pomniejszenia tego projektu.
energooszczędność:
wersja standardowa:
projekt spełnia wymagania cieplne dla nowo projektowanych domów określone w wt2008 ( rozporządzenie ministra infrastruktury dotyczące "warunków technicznych ,jakim powinny odpowiadać budynki i ich usytuowanie )
charakterystyka energetyczna w granicach 120 [kwh/m2/rok]
wersja energooszczędna:
projekt dostępny w wersji energooszczędnej .czas realizacji zamówienia 10dni.
charakterystyka energetyczna w granicach 75 [kwh/m2/rok]
projekt w tej wersji posiada instalację wentylacji z odzyskiem ciepła oraz zmodyfikowane grubości izolacji fundamentów,podłóg,ścian, stropów i dachu.