Dane techniczne
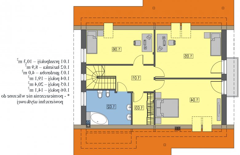
- Powierzchnia użytkowa 182.00 m²
- Powierzchnia zabudowy 142.10 m²
- Kubatura 526.90 m³
- Kąt nachylenia dachu 38.00°
- Wysokość budynku 8.20 m
- Min. wymiary działki 21.50x21.10 m
- Pracownia HB Studio
Technologia budowy
fundamenty: beton zbrojony
ściany zewnętrzne: dwuwarstwowe, pustak ceramiczny + ocieplenie
ściany wewnętrzne: pustak ceramiczny
strop: gęstożebrowy
elewacje: tynk
dach: dachówka cementowa, ceramiczna
Opis
ANIA to dom z poddaszem użytkowym o współczesnej formie i ogromnej popularności. Atrakcyjny wygląd, funkcjonalnie rozmieszczone pomieszczenia zostały zamknięte w nowoczesnej bryle. Dom jest energooszczędny.
Dbamy o swoich Klientów, jak nikt inny!
Do każdego projektu zakupionego za pośrednictwem serwisu kreoDOM.pl otrzymasz książeczkę z rabatami na zakupy w firmach Komfort, Fachowiec, Domino Łazienki, Komandor, Witek Home i innych. Książeczka na pewno okaże się przydatna podczas urządzania Twojego wymarzonego domu!
Książeczka z rabatami do takich firm jak: Komfort, Domino Łazienki, Fachowiec, Vox, Komandor, Witek Home i innych
Gwarancja
bezpiecznych zakupów
Dodatkowe pakiety projektowe
- Kosztorys inwestorski 246,00 zł
- Projekt Instalacji Solarnej 250,00 zł
- Projekt Pompy Ciepła 369,00 zł
- Projekt Wentylacji Mechanicznej 615,00 zł