Dane techniczne
- Powierzchnia użytkowa 152.10 m²
- Powierzchnia zabudowy 148.00 m²
- Kąt nachylenia dachu 35.00°
- Wysokość budynku 8.30 m
- Min. wymiary działki 24.22x16.12 m
- Garaż 21.30 m²
- Pracownia Archdesign
Technologia budowy
PROPOZYCJE MATRIAŁOWE ZASTOSOWANE W
PROJEKCIE (TECHNOLOGIA BUDOWY)
Opis
dom współczesny o tradycyjnej formie i z nowoczesnymi akcentami na elewacji. dostępna wersja z garażem 2-stanowiskowym. istnieje możliwość opracowania innej wersji tego projektu.
energooszczędność:
wersja standardowa:
projekt spełnia wymagania cieplne dla nowo projektowanych domów określone w wt2008 ( rozporządzenie ministra infrastruktury dotyczące "warunków technicznych ,jakim powinny odpowiadać budynki i ich usytuowanie )
charakterystyka energetyczna w granicach 120 [kwh/m2/rok]
wersja energooszczędna:
projekt dostępny w wersji energooszczędnej .czas realizacji zamówienia 10dni.
charakterystyka energetyczna w granicach 75 [kwh/m2/rok]
projekt w tej wersji posiada instalację wentylacji z odzyskiem ciepła oraz zmodyfikowane grubości izolacji fundamentów,podłóg,ścian, stropów i dachu.
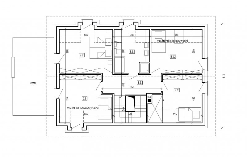
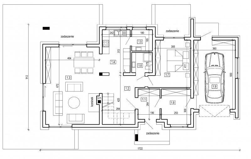
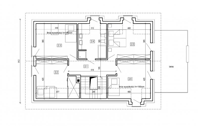
Rzuty
|1.1 Przedsionek 5.0
|1.2 Hall 8.8
|1.3 Pokój dzienny 31.0
|1.4 Kuchnia 9.0
|1.5 Spiżarnia 3.2
|1.6 Łazienka 3.1
|1.7 Sypialnia 13.0
|1.8 Pom. gosp. 7.5
|1.9 Garaż 1-st. 21.3
2.1 Przedpokój 9.0
2.2 Pokój 12.0
2.3 Pokój 12.0
2.4 Łazienka 10.0
2.5 Pokój 14.2
2.6 Pokój 14.3
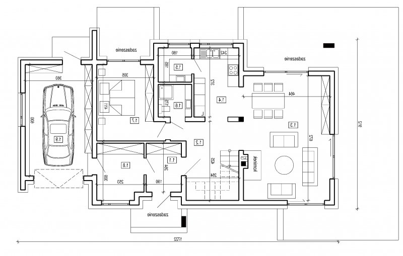
Rzuty
|1.1 Przedsionek 5.0
|1.2 Hall 8.8
|1.3 Pokój dzienny 31.0
|1.4 Kuchnia 9.0
|1.5 Spiżarnia 3.2
|1.6 Łazienka 3.1
|1.7 Sypialnia 13.0
|1.8 Pom. gosp. 7.5
|1.9 Garaż 1-st. 21.3
2.1 Przedpokój 9.0
2.2 Pokój 12.0
2.3 Pokój 12.0
2.4 Łazienka 10.0
2.5 Pokój 14.2
2.6 Pokój 14.3
Dbamy o swoich Klientów, jak nikt inny!
Do każdego projektu zakupionego za pośrednictwem serwisu kreoDOM.pl otrzymasz książeczkę z rabatami na zakupy w firmach Komfort, Fachowiec, Domino Łazienki, Komandor, Witek Home i innych. Książeczka na pewno okaże się przydatna podczas urządzania Twojego wymarzonego domu!
Książeczka z rabatami do takich firm jak: Komfort, Domino Łazienki, Fachowiec, Vox, Komandor, Witek Home i innych
Gwarancja
bezpiecznych zakupów
Dodatkowe pakiety projektowe